Buonasera a tutti,
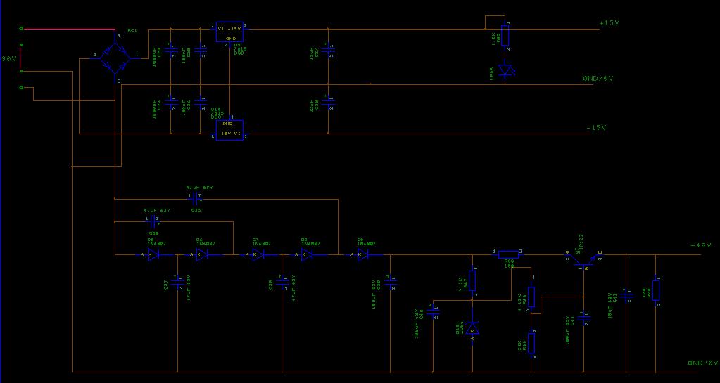
Ho costruito un circuito di almentazione (in allegato) che fornisce i +- 15V e i +48V. Il circuito funziona, nel senso che le tensioni sono giuste, però ho notato che sui punti di massa del circuito ho un fastidioso ronzio. Da cosa potrebbe dipendere? La rete non centra perché la terra non è collegata.
Grazie,
giacomo
Ronzio massa
Moderatori:
carloc,
g.schgor,
BrunoValente,
IsidoroKZ
5 messaggi
• Pagina 1 di 1
0
voti
[2] Re: Ronzio massa
MrJack ha scritto:però ho notato che sui punti di massa del circuito ho un fastidioso ronzio
Puoi spiegarti meglio ?
Con che strumento hai scoperto questo ronzio ?
Come ti sei connesso per fare la misura ?
Cosa devi alimentare ?
Ciao
Giorgio
-

giorgio25760
2.310 1 3 5 - G.Master EY

- Messaggi: 1700
- Iscritto il: 6 dic 2009, 17:02
- Località: Brescia
0
voti
[3] Re: Ronzio massa
ciao,
grazie per la risposta. Dunque il circuito va ad alimentare un preamplificatore audio; il ronzio si sente tra due punti a massa del circuito, ad esempio tra C23 e C27, ma si avverte in tutti i punti. Il rumore (che è un ronzio) si sente con le cuffie e si vede sull'oscilloscopio.
Mi è stato detto che il giro di linee che riguarda l'alternata si interseca con la linea di massa della sezione continua, sporcandola. E mi è stato consigliato di guardare la connessione a stella delle masse.
Cercando ho visto che consiste nell'unire su di un unico punto tutte le masse, ma mi sembra che sia quello che ho fatto io, no?
grazie
grazie per la risposta. Dunque il circuito va ad alimentare un preamplificatore audio; il ronzio si sente tra due punti a massa del circuito, ad esempio tra C23 e C27, ma si avverte in tutti i punti. Il rumore (che è un ronzio) si sente con le cuffie e si vede sull'oscilloscopio.
Mi è stato detto che il giro di linee che riguarda l'alternata si interseca con la linea di massa della sezione continua, sporcandola. E mi è stato consigliato di guardare la connessione a stella delle masse.
Cercando ho visto che consiste nell'unire su di un unico punto tutte le masse, ma mi sembra che sia quello che ho fatto io, no?
grazie
1
voti
[4] Re: Ronzio massa
MrJack ha scritto:Cercando ho visto che consiste nell'unire su di un unico punto tutte le masse, ma mi sembra che sia quello che ho fatto io, no?
Si dallo schema sembrerebbe di si !
Il problema potrebbe essere diverso e si chiama ground loop.
Consideriamo il tuo preamplificatore.
Il segnale da amplificare connesso tramite una spina di ingresso (ad esempio un Jack) va, con un cavo schermato, ad arrivare al preamplificatore.
Sembrerebbe giusto. Potrebbe non esserlo !
Se Il jack si trova a massa sul telaio, il preamplificatore ha delle torrette metalliche che lo collegano a massa. Ecco fatto un ground-loop.
Questo ground loop riesce a mettere in serie al segnale da amplificare del ronzio sempre presente sui telai (contenitore) dovuto per magnetizzazione dovuta del trasformatore o per altro.
Tale ronzio viene poi amplificato e te lo ritrovi sull'uscita.
Si verifica un ground loop, ogni qualvolta vi è un "doppio" collegamento di massa.
Nel caso che ho usato come esempio, per risolverlo bisognerebbe:
- usare un Jack isolato da pannello
- o scollegare il preamplificatore da massa (isolando con torrette plastiche)
Nell' esempio in figura (in basso) il ground loop è stato eliminato scollegando un lato dello schermo da massa.
Un altro problema potrebbe essere dovuto al flusso disperso del trasformatore che va ad investire o cavi di segnale a basso livello oppure l'elettronica stessa del pre.
Usare trasformatori toroidali o con schermo potrebbe essere necessario.
Per fare una prova puoi provare a fare funzionare il tutto con un alimentatore da banco (spegnendo il trasformatore
Fai un po' di prove e fammi sapere.....
Ciao
Giorgio
-

giorgio25760
2.310 1 3 5 - G.Master EY

- Messaggi: 1700
- Iscritto il: 6 dic 2009, 17:02
- Località: Brescia
1
voti
[5] Re: Ronzio massa
ti ringrazio,
il problema è che io sto lavorando semplicemente con la scheda di alimentazione, quindi non ci sono collegamenti con il contenitore.
Infatti tra le masse dei connettori audio non c'è alcun tipo di ronzio, che è presente invece nelle masse dell'alimentazione e di conseguenza mi entrano nell' IC (INA217) che fa da preampli in quanto ha il piedino 5 (REF) collegato alla massa (e quindi al rumore).
Ho notato una cosa strana però, facendo un po di prove sulla PCB, ho notato che se ponticello la massa dei +-15V (che va ad alimentare tutto il circuito) e la avvicino alla massa del C23 il rumore diminuisce di molto.
il problema è che io sto lavorando semplicemente con la scheda di alimentazione, quindi non ci sono collegamenti con il contenitore.
Infatti tra le masse dei connettori audio non c'è alcun tipo di ronzio, che è presente invece nelle masse dell'alimentazione e di conseguenza mi entrano nell' IC (INA217) che fa da preampli in quanto ha il piedino 5 (REF) collegato alla massa (e quindi al rumore).
Ho notato una cosa strana però, facendo un po di prove sulla PCB, ho notato che se ponticello la massa dei +-15V (che va ad alimentare tutto il circuito) e la avvicino alla massa del C23 il rumore diminuisce di molto.
5 messaggi
• Pagina 1 di 1
Chi c’è in linea
Visitano il forum: Nessuno e 147 ospiti

Elettrotecnica e non solo (admin)
Un gatto tra gli elettroni (IsidoroKZ)
Esperienza e simulazioni (g.schgor)
Moleskine di un idraulico (RenzoDF)
Il Blog di ElectroYou (webmaster)
Idee microcontrollate (TardoFreak)
PICcoli grandi PICMicro (Paolino)
Il blog elettrico di carloc (carloc)
DirtEYblooog (dirtydeeds)
Di tutto... un po' (jordan20)
AK47 (lillo)
Esperienze elettroniche (marco438)
Telecomunicazioni musicali (clavicordo)
Automazione ed Elettronica (gustavo)
Direttive per la sicurezza (ErnestoCappelletti)
EYnfo dall'Alaska (mir)
Apriamo il quadro! (attilio)
H7-25 (asdf)
Passione Elettrica (massimob)
Elettroni a spasso (guidob)
Bloguerra (guerra)
