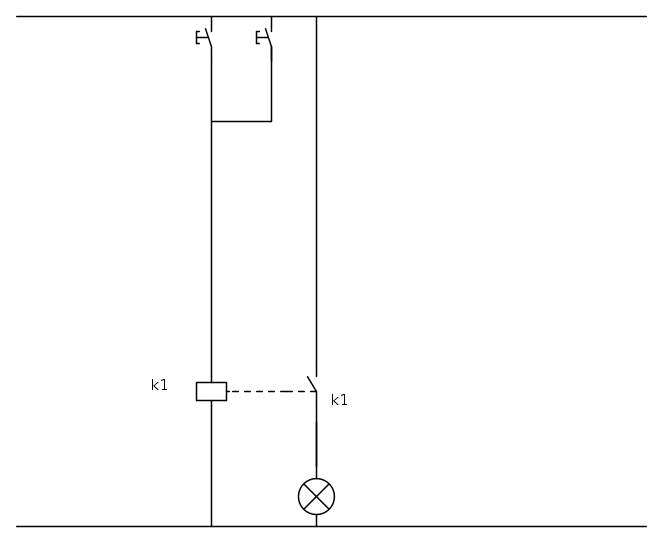
Questo schema va bene?
Comando luce da due punti
Moderatori:
sebago,
MASSIMO-G,
lillo,
Mike
31 messaggi
• Pagina 1 di 4 • 1, 2, 3, 4
1
voti
[2] Re: deviatore
Questo schema va bene?
La domanda non ha molto senso. Dipende da cosa vuoi ottenere dal circuito.
PS: dov' è il deviatore?
Ognuno sta solo sul cuor della terra
trafitto da un raggio di sole:
ed è subito sera
Salvatore Quasimodo
trafitto da un raggio di sole:
ed è subito sera
Salvatore Quasimodo
0
voti
[5] Re: deviatore
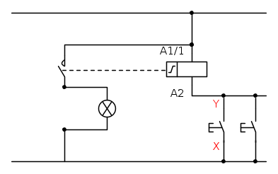
se vuoi accendere una lampada da 2 punti devi fare così : [FIDOCAD]
se c'è qualcosa chiedi pure
se c'è qualcosa chiedi pure

-

milan1996pato2
851 3 10 13 - Sostenitore

- Messaggi: 1062
- Iscritto il: 4 ago 2011, 17:42
1
voti
[6] Re: deviatore
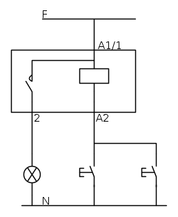
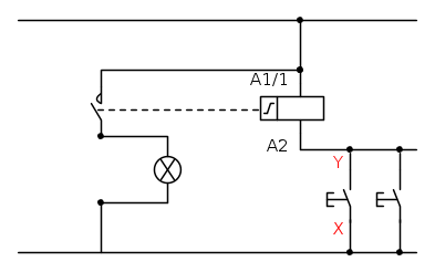
Lo schema iniziale era giusto, tuttavia dal titolo del tread e da qualche mancanza nello schema, si poteva interpretare in altra maniera (come avevo fatto io).
Nell' editare il tuo schema, ho aggiunto il tipo di relè (a ritenuta meccanica o passo passo) e chiarificato che il contatto di potenza che alimenta la lampada è comandato proprio dal relè (si poteva fare anche assegnando le opportune lettere come ha fatto milan..)
milan1996pato2, di solito si usa portare il neutro ai pulsanti, almeno io uso così.
Nell' editare il tuo schema, ho aggiunto il tipo di relè (a ritenuta meccanica o passo passo) e chiarificato che il contatto di potenza che alimenta la lampada è comandato proprio dal relè (si poteva fare anche assegnando le opportune lettere come ha fatto milan..)
Ognuno sta solo sul cuor della terra
trafitto da un raggio di sole:
ed è subito sera
Salvatore Quasimodo
trafitto da un raggio di sole:
ed è subito sera
Salvatore Quasimodo
1
voti
[7] Re: deviatore
a me a scuola hanno insegnato il contrario dicendomi che secondo la norma il pulsante deve essere usato solo con la fase e non con il neutro . Poi io non so a me mi hanno detto così 

-

milan1996pato2
851 3 10 13 - Sostenitore

- Messaggi: 1062
- Iscritto il: 4 ago 2011, 17:42
4
voti
[8] Re: deviatore
Attilio ha scritto:milan1996pato2, di solito si usa portare il neutro ai pulsanti, almeno io uso così.
Il comando funzionale deve interrompere sempre la fase!
--
Michele Lysander Guetta
--
"Non pensare mai al dolore, al pericolo o ai nemici un momento più lungo del necessario per combatterli." — Ayn Rand
Michele Lysander Guetta
--
"Non pensare mai al dolore, al pericolo o ai nemici un momento più lungo del necessario per combatterli." — Ayn Rand
-

Mike
55,6k 7 10 12 - G.Master EY

- Messaggi: 17005
- Iscritto il: 1 ott 2004, 18:25
- Località: Conegliano (TV)
1
voti
[9] Re: deviatore
Mike ha scritto:Il comando funzionale deve interrompere sempre la fase!
Scusa Mike, il dispositivo di comando funzionale in questo caso dovrebbe essere il relè e non il pulsante in se, almeno così leggo nella 64-8/5.
Magari sono io che in casi come questo ho sempre sbagliato e insieme a me sbaglia anche uno tra i più grossi costruttori di relè, che nei suoi schemi interrompe anch' esso il neutro con i pulsanti. [E' ovviamente poi il relè ad interrompere la fase]
link
Ognuno sta solo sul cuor della terra
trafitto da un raggio di sole:
ed è subito sera
Salvatore Quasimodo
trafitto da un raggio di sole:
ed è subito sera
Salvatore Quasimodo
31 messaggi
• Pagina 1 di 4 • 1, 2, 3, 4
Torna a Impianti, sicurezza e quadristica
Chi c’è in linea
Visitano il forum: Google [Bot] e 31 ospiti

Elettrotecnica e non solo (admin)
Un gatto tra gli elettroni (IsidoroKZ)
Esperienza e simulazioni (g.schgor)
Moleskine di un idraulico (RenzoDF)
Il Blog di ElectroYou (webmaster)
Idee microcontrollate (TardoFreak)
PICcoli grandi PICMicro (Paolino)
Il blog elettrico di carloc (carloc)
DirtEYblooog (dirtydeeds)
Di tutto... un po' (jordan20)
AK47 (lillo)
Esperienze elettroniche (marco438)
Telecomunicazioni musicali (clavicordo)
Automazione ed Elettronica (gustavo)
Direttive per la sicurezza (ErnestoCappelletti)
EYnfo dall'Alaska (mir)
Apriamo il quadro! (attilio)
H7-25 (asdf)
Passione Elettrica (massimob)
Elettroni a spasso (guidob)
Bloguerra (guerra)







