nel tuo caso non funziona in quanto non avendo il neutro a terra al primo guasto non circola corrente da misurare col sistema detto da marco.
per farlo funzionare o togli il trasformatore o metti un polo del secondario a terra
Protezione tramite separazione elettrica Vs Sistema IT-M
Moderatori:
sebago,
MASSIMO-G,
lillo,
Mike
39 messaggi
• Pagina 4 di 4 • 1, 2, 3, 4
0
voti
Non capisco a cosa serva alimentare degli UPS con un trasformatore di isolamento e men che meno con un sistema IT-M (che sarebbe sempre in allarme viste le correnti di dispesione). C'è qualche cosa che mi sfugge? Se è così ditemelo che vendo il brevetto a Google! 
--
Michele Lysander Guetta
--
"Non pensare mai al dolore, al pericolo o ai nemici un momento più lungo del necessario per combatterli." — Ayn Rand
Michele Lysander Guetta
--
"Non pensare mai al dolore, al pericolo o ai nemici un momento più lungo del necessario per combatterli." — Ayn Rand
-

Mike
55,6k 7 10 12 - G.Master EY

- Messaggi: 17001
- Iscritto il: 1 ott 2004, 18:25
- Località: Conegliano (TV)
0
voti
Scusa Mike,
ma se un un impianto è completamente isolato, dove si richiudono le correnti di dispersione dell'UPS?
L'unica richiusura che vedo è aatraverso le capacità parassite e il neutro.
ma se un un impianto è completamente isolato, dove si richiudono le correnti di dispersione dell'UPS?
L'unica richiusura che vedo è aatraverso le capacità parassite e il neutro.
1
voti
Studiando i circuiti, noto che ci sono tropi casini.
levo il trafo e faccio nella classica maniera. sistem TN-S con UPS per ogni equipment.
che dite?
Il trafo me lo rivendo.
levo il trafo e faccio nella classica maniera. sistem TN-S con UPS per ogni equipment.
che dite?
Il trafo me lo rivendo.
0
voti
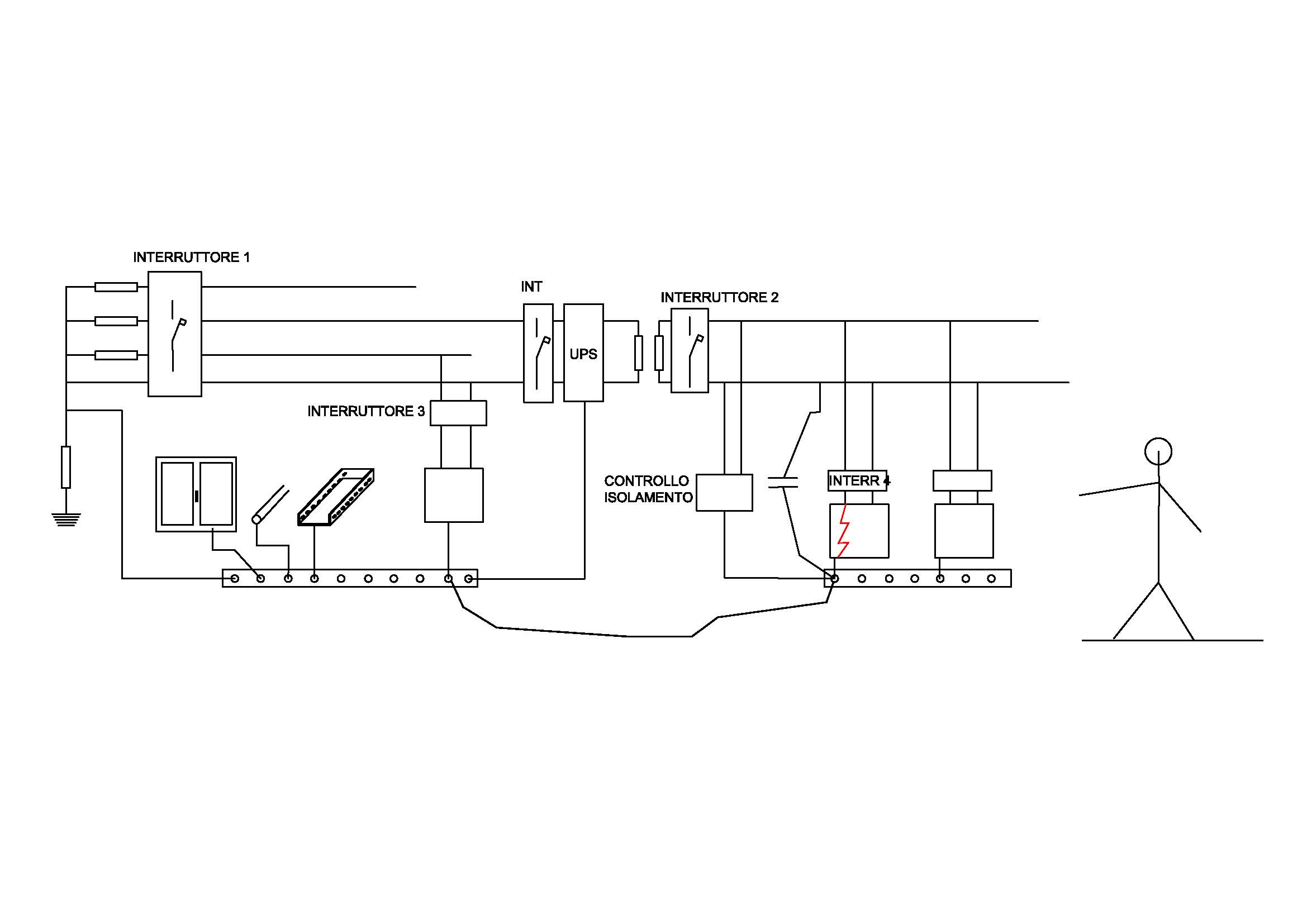
Nel sistema IT-M il controllore di isolamento è inserito tra il secondario e il conduttore di protezione e non c'è la separazione elettrica perché le masse sono collegate al nodo equipotenziale, cosa vietata nella separazione elettrica, infatti si chiama IT-M per questo.
--
Michele Lysander Guetta
--
"Non pensare mai al dolore, al pericolo o ai nemici un momento più lungo del necessario per combatterli." — Ayn Rand
Michele Lysander Guetta
--
"Non pensare mai al dolore, al pericolo o ai nemici un momento più lungo del necessario per combatterli." — Ayn Rand
-

Mike
55,6k 7 10 12 - G.Master EY

- Messaggi: 17001
- Iscritto il: 1 ott 2004, 18:25
- Località: Conegliano (TV)
0
voti
zintonio ha scritto:Studiando i circuiti, noto che ci sono tropi casini.
levo il trafo e faccio nella classica maniera. sistem TN-S con UPS per ogni equipment.
che dite?
Il trafo me lo rivendo.
Puoi usarlo come fermacarte
--
Michele Lysander Guetta
--
"Non pensare mai al dolore, al pericolo o ai nemici un momento più lungo del necessario per combatterli." — Ayn Rand
Michele Lysander Guetta
--
"Non pensare mai al dolore, al pericolo o ai nemici un momento più lungo del necessario per combatterli." — Ayn Rand
-

Mike
55,6k 7 10 12 - G.Master EY

- Messaggi: 17001
- Iscritto il: 1 ott 2004, 18:25
- Località: Conegliano (TV)
0
voti
Ultima domanda,
Anche nella separazione elettrica il controllore di isolamento è inserito tra il secondario e il conduttore di protezione. Il guasto deve essere comunque segnalato.
Negli ospedali, per quel che ho visto, ho trovato sempre UPS a monte di tutto.
comunque, a rigor di logica, e supponendo di voler ammazare la mosca col cannone .....circuitalmente....un sistema come la figura in allegato è corretta e fattibile, giusto?
Se non lo è, vi prego di spiegare tutti gli inconvenienti/svantaggi ecc....
Mi viene da domandarmi:
Dove è che si adotta di usare il sistema separazione elettrica? Abbiamo detto che l'IT-M è per le sale operatorie..ma la separazione elettrica dove si usa?
Grazie a tutti
Anche nella separazione elettrica il controllore di isolamento è inserito tra il secondario e il conduttore di protezione. Il guasto deve essere comunque segnalato.
Negli ospedali, per quel che ho visto, ho trovato sempre UPS a monte di tutto.
comunque, a rigor di logica, e supponendo di voler ammazare la mosca col cannone .....circuitalmente....un sistema come la figura in allegato è corretta e fattibile, giusto?
Se non lo è, vi prego di spiegare tutti gli inconvenienti/svantaggi ecc....
Mi viene da domandarmi:
Dove è che si adotta di usare il sistema separazione elettrica? Abbiamo detto che l'IT-M è per le sale operatorie..ma la separazione elettrica dove si usa?
Grazie a tutti
0
voti
la separazione elettrica la puoi usare per piccole utenze in contesti delicati.
Per esempio nel buon vecchio testo di Carrescia credo ci fosse un esempio di applicazione per apparecchi trasportabili da usare entro spazi ristretti o conduttori.
Per esempio nel buon vecchio testo di Carrescia credo ci fosse un esempio di applicazione per apparecchi trasportabili da usare entro spazi ristretti o conduttori.
39 messaggi
• Pagina 4 di 4 • 1, 2, 3, 4
Torna a Impianti, sicurezza e quadristica
Chi c’è in linea
Visitano il forum: Nessuno e 55 ospiti

Elettrotecnica e non solo (admin)
Un gatto tra gli elettroni (IsidoroKZ)
Esperienza e simulazioni (g.schgor)
Moleskine di un idraulico (RenzoDF)
Il Blog di ElectroYou (webmaster)
Idee microcontrollate (TardoFreak)
PICcoli grandi PICMicro (Paolino)
Il blog elettrico di carloc (carloc)
DirtEYblooog (dirtydeeds)
Di tutto... un po' (jordan20)
AK47 (lillo)
Esperienze elettroniche (marco438)
Telecomunicazioni musicali (clavicordo)
Automazione ed Elettronica (gustavo)
Direttive per la sicurezza (ErnestoCappelletti)
EYnfo dall'Alaska (mir)
Apriamo il quadro! (attilio)
H7-25 (asdf)
Passione Elettrica (massimob)
Elettroni a spasso (guidob)
Bloguerra (guerra)







