Ciao a tutti.
Qualcuno saprebbe dirmi come si disegna una linea elettrica in pianta, per illuminare una scala,
che mette in comunicazione due locali su due piani?
E cioè...bisogna ridisegnarla per ogni planimetria dei piani dei locali, basta un segno grafico (quale?) oppure
va scritta una nota?
Grazie a chiunque risponderà.
Disegnare linea elettrica in una tromba di scale in pianta
Moderatori:
sebago,
MASSIMO-G,
lillo,
Mike
8 messaggi
• Pagina 1 di 1
0
voti
Dal mio punto di vista è focale l'informazione che vuoi passare con l'elaborato.
Immagino che nella planimetria indicherai i corpi illuminati ed i comandi eventuali per ciascuno dei due piani.
E qui sarebbe banale perché basta tirare una riga.
Il problema nasce quando vuoi portare la dorsale fra i due piani e/o i comandi fra i due piani.
Un dettaglio ingrandito (ad esempio una scatola di derivazione) con la nota "dal piano inferiore" può essere utile ma direi di lavorare anche sull'unificare.
Immagino che nella planimetria indicherai i corpi illuminati ed i comandi eventuali per ciascuno dei due piani.
E qui sarebbe banale perché basta tirare una riga.
Il problema nasce quando vuoi portare la dorsale fra i due piani e/o i comandi fra i due piani.
Un dettaglio ingrandito (ad esempio una scatola di derivazione) con la nota "dal piano inferiore" può essere utile ma direi di lavorare anche sull'unificare.
0
voti
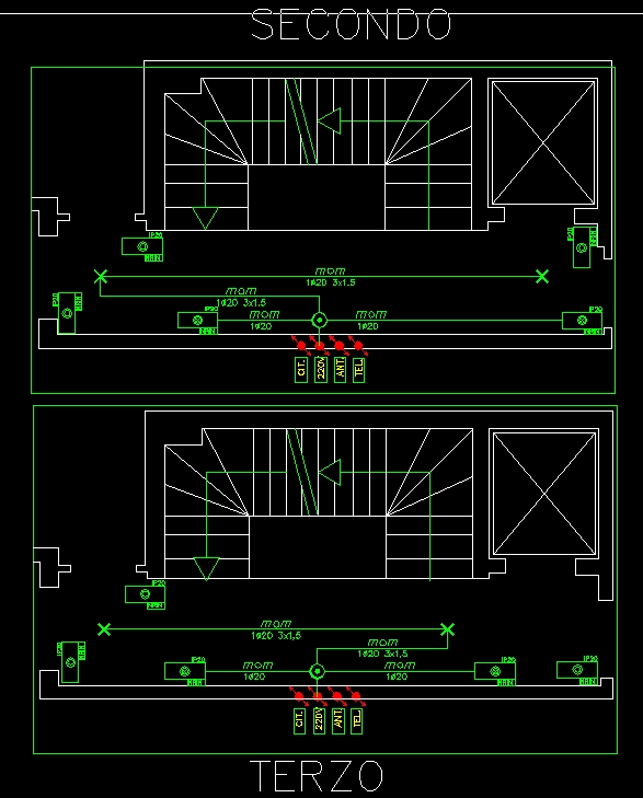
ti riporto alcuni esempi di identificazione delle montanti, sono riferiti ad un condominio
non ci sono problemi, ma solo soluzioni
0
voti
Ciao.
Ho letto appena adesso le risposte di Serafino e di Iosolo35 e li ringrazio entrambi.
Comunque la soluzione grafica che più si avvicina alle mie esigenze è quella proposta da Iosolo35 nel secondo post.
Da Serafino prenderò il suggerimento della nota da inserire nel disegno in modo che risulti
quanto più possibile chiaro.
Ho letto appena adesso le risposte di Serafino e di Iosolo35 e li ringrazio entrambi.
Comunque la soluzione grafica che più si avvicina alle mie esigenze è quella proposta da Iosolo35 nel secondo post.
Da Serafino prenderò il suggerimento della nota da inserire nel disegno in modo che risulti
quanto più possibile chiaro.

0
voti
L'obiettivo dei nostri progetti è dare sicurezza all'installatore così che possa essere sicuro di poter realizzare un impianto a regola d'arte Grazie mille 

non ci sono problemi, ma solo soluzioni
8 messaggi
• Pagina 1 di 1
Torna a Impianti, sicurezza e quadristica
Chi c’è in linea
Visitano il forum: Nessuno e 53 ospiti

Elettrotecnica e non solo (admin)
Un gatto tra gli elettroni (IsidoroKZ)
Esperienza e simulazioni (g.schgor)
Moleskine di un idraulico (RenzoDF)
Il Blog di ElectroYou (webmaster)
Idee microcontrollate (TardoFreak)
PICcoli grandi PICMicro (Paolino)
Il blog elettrico di carloc (carloc)
DirtEYblooog (dirtydeeds)
Di tutto... un po' (jordan20)
AK47 (lillo)
Esperienze elettroniche (marco438)
Telecomunicazioni musicali (clavicordo)
Automazione ed Elettronica (gustavo)
Direttive per la sicurezza (ErnestoCappelletti)
EYnfo dall'Alaska (mir)
Apriamo il quadro! (attilio)
H7-25 (asdf)
Passione Elettrica (massimob)
Elettroni a spasso (guidob)
Bloguerra (guerra)






