Ciao a tutti,
Non so se qualcuno ha avuto già modo di provare a "domotizzare" una vmc.. Volevo farlo con un sonoff t2 a 3 canali sostituendolo all'attuale commutatore rotativo che aziona la velocità della vmc (3 velocità più lo 0 che la spegne).
Leggendo un po' in giro mi sembra di aver capito che con gli ultimi aggiornamenti il sonoff t2 ha aggiunto la funzionalità di interblocco che dovrebbe fare al mio caso.. Prima di fare cavolate volevo avere una conferma da qualcuno più esperto sul collegamento che dovrò fare. (previa verifica dell'interblocco).
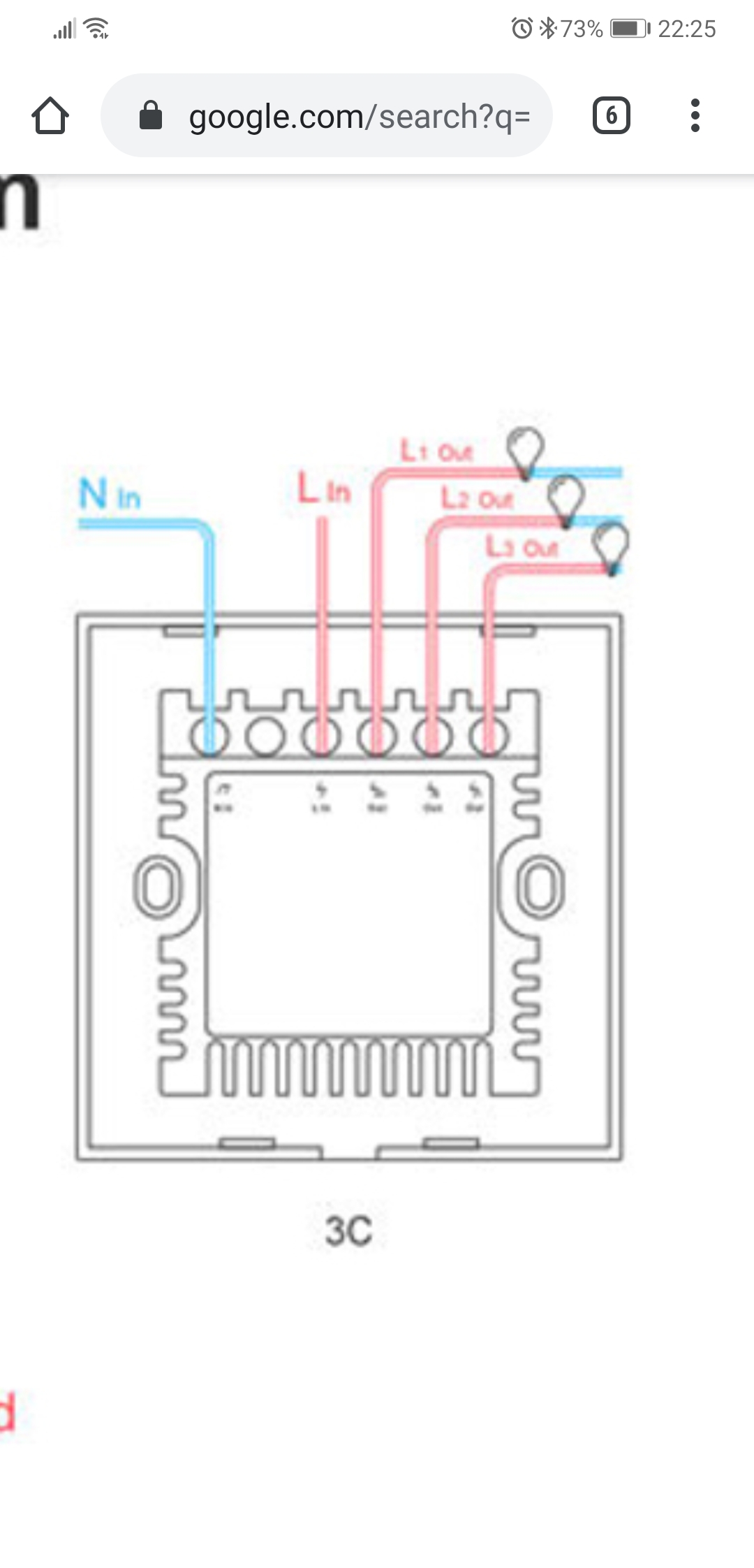
Volevo capire se quello che penso di fare è corretto ovvero sostituire l'attuale commutatore collegando le tre fasi della vmc nei l1 l2 l3 del sonoff (I fili che poi vanno nella morsettiera L ovvero velocità bassa M velocità media H velocità massima della vmc) e poi la fase principale che arriva dall'impianto elettrico in l e il neutro in n corretto? Non mi sto perdendo niente? L'attuale zero sarà "simulato" da un secondo click sul pulsante attivo giusto?
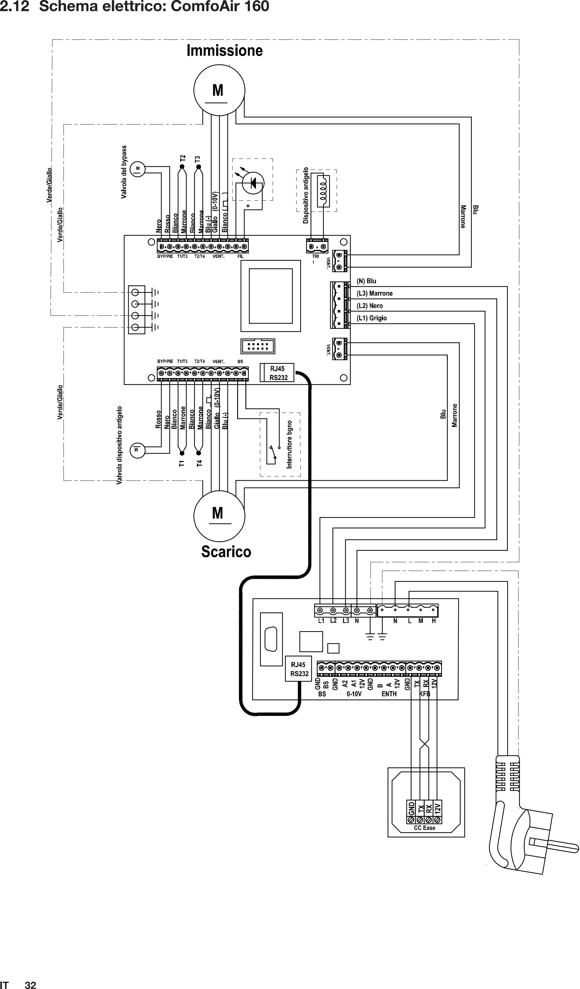
In allegato metto lo schema del sonoff, lo schema della mia vmc e una foto dei cavi che sono collegati alla scheda madre della vmc (manca la foto del commutatore che non ho fatto).
Grazie a tutti
Comando vmc
2 messaggi
• Pagina 1 di 1
0
voti
[2] Re: Comando vmc
Ho fatto un po' di prove con delle lampadine e l'interblocco del sonoff funziona..il mio dubbio ora è che essendo un "blocco" lato software, si possa "rompere" con qualche aggiornamento futuro, rischiando di vedermi attivate due o più fasi insieme..in questo caso cosa succederebbe? il motore della vmc andrebbe in fumo giusto??
grazie a chi mi deluciderà..
grazie a chi mi deluciderà..
2 messaggi
• Pagina 1 di 1
Chi c’è in linea
Visitano il forum: Nessuno e 21 ospiti

Elettrotecnica e non solo (admin)
Un gatto tra gli elettroni (IsidoroKZ)
Esperienza e simulazioni (g.schgor)
Moleskine di un idraulico (RenzoDF)
Il Blog di ElectroYou (webmaster)
Idee microcontrollate (TardoFreak)
PICcoli grandi PICMicro (Paolino)
Il blog elettrico di carloc (carloc)
DirtEYblooog (dirtydeeds)
Di tutto... un po' (jordan20)
AK47 (lillo)
Esperienze elettroniche (marco438)
Telecomunicazioni musicali (clavicordo)
Automazione ed Elettronica (gustavo)
Direttive per la sicurezza (ErnestoCappelletti)
EYnfo dall'Alaska (mir)
Apriamo il quadro! (attilio)
H7-25 (asdf)
Passione Elettrica (massimob)
Elettroni a spasso (guidob)
Bloguerra (guerra)