Salve,
in una cella di media tensione senza bobina di minima tensione ma con data logger, lo sgancio a lancio di corrente è effettuato tramite una bobina a lancio di corrente come per gli interruttori in BT oppure tramite un segnale al relè (un Sepam ad esempio) il quale comanda lo sgancio?
Se siamo nel primo caso, dove è posizionata in genere questa bobina con i relativi terminali? Mi servirebbe capirlo per attuare un rincalzo e uno sgancio da un relè di protezione da sovratemperatura del trasformatore
Bobina a lancio di corrente in cella MT
Moderatori:
sebago,
MASSIMO-G,
lillo,
Mike
13 messaggi
• Pagina 1 di 2 • 1, 2
1
voti
Il circuito di sgancio aziona un interruttore di manovra-sezionatore, per esempio il DG. Di conseguenza c'è sempre una bobina di sgancio che è posizionata nel dispositivo di protezione da sganciare. Nei quadri MT normalmente si portano i circuiti ausiliari nell'apposito box dedicato alla BT.
--
Michele Lysander Guetta
--
"Non pensare mai al dolore, al pericolo o ai nemici un momento più lungo del necessario per combatterli." — Ayn Rand
Michele Lysander Guetta
--
"Non pensare mai al dolore, al pericolo o ai nemici un momento più lungo del necessario per combatterli." — Ayn Rand
-

Mike
55,6k 7 10 12 - G.Master EY

- Messaggi: 17005
- Iscritto il: 1 ott 2004, 18:25
- Località: Conegliano (TV)
1
voti
Ogni produttore lavora a suo modo, come detto da
Mike inizierei a cercare nella "sezione BT".
Non si riesce ad avere il modello della cella MT su cui devi eseguire la modifica e magari i funzionali

Non si riesce ad avere il modello della cella MT su cui devi eseguire la modifica e magari i funzionali

0
voti
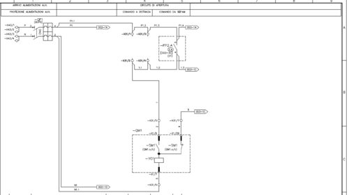
Ho allegato sotto lo schema del circuito di apertura. Due domande:
1. Dallo schema mi sembra che debba portare lo sgancio ai morsetti X1.6 e X1.7, che sono quelli piu vicini alla bobina di sgancio, corretto? Ma cosa indica quell'interruttore in mezzo a quei due morsetti (SM1)? E' l'interruttore generale che verrà aperto a seguito dell'eccitazione della bobina?
2. Cosa indicano quelle frecce di riporto (ad esempio 003-1A, oppure 003-1C) ? E come mai hanno quei nomi, c'è una nomenclatura?
1. Dallo schema mi sembra che debba portare lo sgancio ai morsetti X1.6 e X1.7, che sono quelli piu vicini alla bobina di sgancio, corretto? Ma cosa indica quell'interruttore in mezzo a quei due morsetti (SM1)? E' l'interruttore generale che verrà aperto a seguito dell'eccitazione della bobina?
2. Cosa indicano quelle frecce di riporto (ad esempio 003-1A, oppure 003-1C) ? E come mai hanno quei nomi, c'è una nomenclatura?
-

Digisamuel98
15 1 5 - New entry

- Messaggi: 99
- Iscritto il: 23 mar 2023, 10:18
1
voti
1. I morsetti direi che sono quelli X31/5-6-7, X1 è un connettore. SM1 bisogna vedere sulla legenda potrebbe essere benissimo un interblocco un contatto di un relè ecc
2. Sono i riferimenti alla pagina e al quadrante: 003-1A pagina 3 riga A colonna 1. si usano per "collegare" i fogli

2. Sono i riferimenti alla pagina e al quadrante: 003-1A pagina 3 riga A colonna 1. si usano per "collegare" i fogli

1
voti
Il lancio di corrente all B.A. Y01 lo fai sul morsetto X31/5 e funziona solo se QM1 è chiuso (tramite il c.a. SM1 chiuso a QM1 chiuso). Infatti azioni l'apertura di QM1 solo se QM1 è stato preventivamente chiuso.......
L'altro contatto SM1 (chiuso a QM1 aperto) dovrebbe servire per il controllo del circuito di apertura dove è inserita la bobina di apertura Y01 a lancio. Di solito si chiama TCS (trip circuit supervisor). Questo è espressamente richiesto dalla norma CEI 0-16 art. C.3.2.4 se non usi la bobina di minima tensione.
L'altro contatto SM1 (chiuso a QM1 aperto) dovrebbe servire per il controllo del circuito di apertura dove è inserita la bobina di apertura Y01 a lancio. Di solito si chiama TCS (trip circuit supervisor). Questo è espressamente richiesto dalla norma CEI 0-16 art. C.3.2.4 se non usi la bobina di minima tensione.
0
voti
Chiaro, grazie mille a entrambi! Ho dei dubbi rimanenti:
1)Ma per cosa sta "QM1 o/c"? Inoltre Esisnc, con "tramite il contatto ausiliario SM1 chiuso" intendi che se il contatto ausiliario SM1 non funziona allora non viene aperto l'interruttore? Ma che senso ha mettere il circuito di sgancio in serie al contatto ausiliario SM1 e ancora in serie alla bobina a lancio? Non aumenta il rischio di non intervento (per esempio nel caso in cui il contatto ausiliario non funzioni)?
2) Essendo i contatti X31/2 e X31/4 in serie al contatto X31/5, lo sgancio posso farlo anche su X31/2 o X31/4? Se si, che senso ha mettere questi 3 contatti in serie?
3) Una delle 2 linee che giungono al morsetto X31/2 o X31/4 è obliqua. C'è una logica dietro a questo?
1)Ma per cosa sta "QM1 o/c"? Inoltre Esisnc, con "tramite il contatto ausiliario SM1 chiuso" intendi che se il contatto ausiliario SM1 non funziona allora non viene aperto l'interruttore? Ma che senso ha mettere il circuito di sgancio in serie al contatto ausiliario SM1 e ancora in serie alla bobina a lancio? Non aumenta il rischio di non intervento (per esempio nel caso in cui il contatto ausiliario non funzioni)?
2) Essendo i contatti X31/2 e X31/4 in serie al contatto X31/5, lo sgancio posso farlo anche su X31/2 o X31/4? Se si, che senso ha mettere questi 3 contatti in serie?
3) Una delle 2 linee che giungono al morsetto X31/2 o X31/4 è obliqua. C'è una logica dietro a questo?
-

Digisamuel98
15 1 5 - New entry

- Messaggi: 99
- Iscritto il: 23 mar 2023, 10:18
1
voti
La B.A. a lancio non deve essere alimentata permanentemente altrimenti si danneggia. Il c.a. SM1 in serie alla B.A. che si apre solidalmente con QM1 serve a questo scopo, anche se l'uscita della P.I. che comanda la B.A. avesse un rele' memorizzato.
1
voti
La pagina di schema si riferisce a una cella SM6 Schneider con relè S20/S41 e data logger realizzato con MES114. E' un tipico , le loro celle sono sempre cablate cosi. I morsetti ai capi della bobina di sgancio X31/5-6-7 sono stati messi per riportare i fili degli ausiliari dell'interruttore nel cassonetto portastrumenti. Tutti i fili ausiliari dell'interruttore sono cablati in questa morsettiera. Cosi avendo tutto riportato in morsettiera non c'è più necessità di dovere aprire il cofano dell'interruttore di media (ad esempio per portare via in un secondo tempo lo stato dell'interruttore tramite contatti ausiliari o altro...)
0
voti
Grazie mille a entrambi per le gentili risposte. Si massimo, è esattamente lo schema di quella cella, con una s41. Ma lo sgancio si potrebbe fare indifferente anche sui morsetti X31/2 e X31/4 essendo in serie? Come mai si mettono 3 morsetti per la stessa funzione, solo per una questione di spazio e di ordine?
-

Digisamuel98
15 1 5 - New entry

- Messaggi: 99
- Iscritto il: 23 mar 2023, 10:18
13 messaggi
• Pagina 1 di 2 • 1, 2
Torna a Impianti, sicurezza e quadristica
Chi c’è in linea
Visitano il forum: Google [Bot] e 125 ospiti

Elettrotecnica e non solo (admin)
Un gatto tra gli elettroni (IsidoroKZ)
Esperienza e simulazioni (g.schgor)
Moleskine di un idraulico (RenzoDF)
Il Blog di ElectroYou (webmaster)
Idee microcontrollate (TardoFreak)
PICcoli grandi PICMicro (Paolino)
Il blog elettrico di carloc (carloc)
DirtEYblooog (dirtydeeds)
Di tutto... un po' (jordan20)
AK47 (lillo)
Esperienze elettroniche (marco438)
Telecomunicazioni musicali (clavicordo)
Automazione ed Elettronica (gustavo)
Direttive per la sicurezza (ErnestoCappelletti)
EYnfo dall'Alaska (mir)
Apriamo il quadro! (attilio)
H7-25 (asdf)
Passione Elettrica (massimob)
Elettroni a spasso (guidob)
Bloguerra (guerra)



