Inverter monofase su fornitura trifase
Moderatori:
sebago,
mario_maggi
22 messaggi
• Pagina 1 di 3 • 1, 2, 3
0
voti
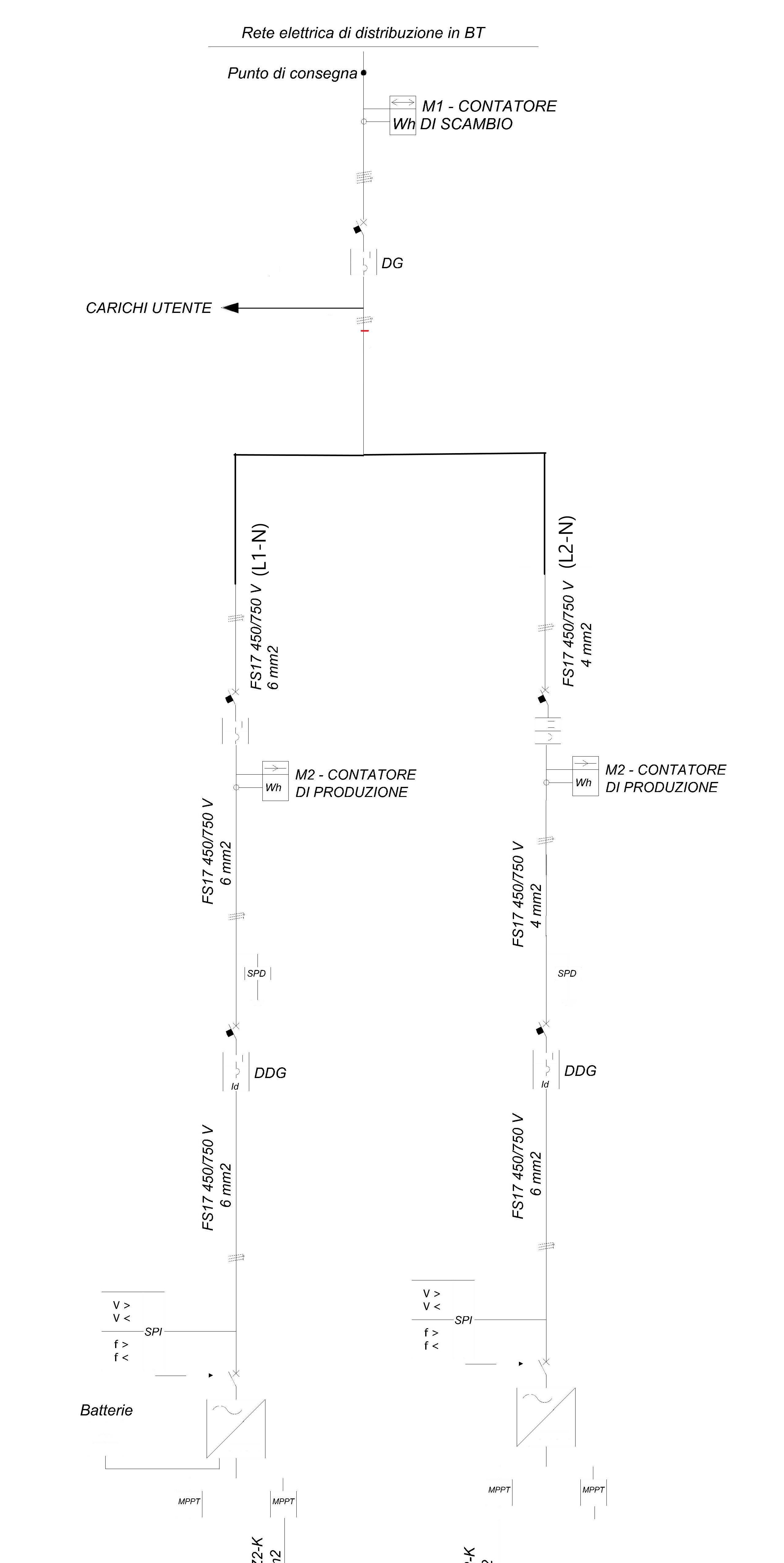
Salve, nel caso in cui abbia una potenza di fornitura TRIFASE da 6 kW con un impianto fotovoltaico avente inverter monofase da 3 kW a cui si aggiunge un inverter ibrido monofase da 6 kW con relative batterie, è necessario suddividere i due inverter su due fasi differenti. Ho rappresentato tale configurazione d'impianto con schema unifilare, potrebbe andare bene secondo voi?
0
voti
@Blaster considerando i tuoi dati di input, il programma Solarius restituisce lo stesso schema unifilare che hai postato, per cui è corretta la rappresentazione della configurazione d'impianto da te indicata.
0
voti
firefox ha scritto:@Blaster considerando i tuoi dati di input, il programma Solarius restituisce lo stesso schema unifilare che hai postato, per cui è corretta la rappresentazione della configurazione d'impianto da te indicata.
ok, quindi ci siamo. Mi rimane solo un dubbio. Nel tratto di impianto evidenziato con il rettangolo rosso, è corretto indicare, in termini di "simbologia" le due sezioni dei cavi unipolari che collegano l'uscita dei due inverter 1) a valle del DG quadripolare oppure 2) a monte dell'interruttore generale quadripolare posto nel quadro utente oppure 3) a monte degli interruttori generali bipolari delle delle due fasi posti nel quadro utente?
Allego schema
0
voti
Senza "esploderlo" in multifilare, non è sufficiente indicare le fasi L1-N L2-N ecc. semplicemente sull'unifilare?
--
Michele Lysander Guetta
--
"Non pensare mai al dolore, al pericolo o ai nemici un momento più lungo del necessario per combatterli." — Ayn Rand
Michele Lysander Guetta
--
"Non pensare mai al dolore, al pericolo o ai nemici un momento più lungo del necessario per combatterli." — Ayn Rand
-

Mike
55,6k 7 10 12 - G.Master EY

- Messaggi: 17001
- Iscritto il: 1 ott 2004, 18:25
- Località: Conegliano (TV)
0
voti
Mike ha scritto:Senza "esploderlo" in multifilare, non è sufficiente indicare le fasi L1-N L2-N ecc. semplicemente sull'unifilare?
Hai modo di abbozzare lo schema sulla base di quello che ho allegato io così ci capiamo meglio? Inoltre per il discorso dei cavi unipolari con sezioni diverse nella parte di impianto evidenziata in rosso hai suggerimenti?
0
voti
Mike ha scritto:
in questo modo lo schema rimane unifilare, chiaro. Invece nel tratto che nel mio schema ho indicato con il rettangolo rosso non devono essere specificati i cavi unipolari di sezione diversa che consentiranno la connessione on grid dell'impianto?
0
voti
Blaster ha scritto:Invece nel tratto che nel mio schema ho indicato con il rettangolo rosso non devono essere specificati i cavi unipolari di sezione diversa che consentiranno la connessione on grid dell'impianto?
Dovrebbe essere letto da qualcuno con un minimo di competenza in materia, per cui è ridondante.
--
Michele Lysander Guetta
--
"Non pensare mai al dolore, al pericolo o ai nemici un momento più lungo del necessario per combatterli." — Ayn Rand
Michele Lysander Guetta
--
"Non pensare mai al dolore, al pericolo o ai nemici un momento più lungo del necessario per combatterli." — Ayn Rand
-

Mike
55,6k 7 10 12 - G.Master EY

- Messaggi: 17001
- Iscritto il: 1 ott 2004, 18:25
- Località: Conegliano (TV)
1
voti
Per cortesia gli schemi in Fidocadj!! E non sarebbe nemmeno da dire...
A mio avviso ci sono svariati punti oscuri:
1) ti preoccupi delle sezioni e tipo di cavi ma non indichi le caratteristiche degli interruttori: a che serve?
2) il PDC è a valle di M1 non a monte.
3) i cavi nel rettangolo rosso ed a valle di questo potrebbero non sono protetti dal cortocircuito, da quanto è il DG? 10A? 32A?
4) lo schema potrebbe non essere rappresentativo della reale situazione: nella zona del rettangolo rosso quanti conduttori effettivamente ci sono/saranno? 3? 4? 5? 6?Occorre mettere i trattini giusti. Ma è effettivamente così? UNA linea che parte da un punto di parallelo e finisce in un altro punto di parallelo? Oppure sono 2 linee diverse che viaggiano parallele?
5) il neutro che dimensione avrebbe? Quanta corrente ci scorre? È idoneamente protetto? Ed il PE?
6) se non ho compreso male è un ampliamento, quindi la linea nel rettangolo rosso era esistente e presumibilmente da 4mm², quindi anche il neutro da 4mm², ora tale è rimasto? Quanti neutri ci sono in quel tratto?
7) perché hai esploso l'inverter? È effettivamente in pezzi separati? Da tablet l'immagine non si vede bene, quindi non capisco se vi sono ad es. dei rettangoli che racchiudono i vari pezzi.
8) i DDG sono diversi, io metterei una numerazione (es. DDG1 DDG2)
9) non vedo le caratteristiche degli SPD...
10) indicherei che una sezione è esistente ed una aggiuntiva
Vorrei ricordare che la corrente elettrica è mortale e non va presa sottogamba. Per cui meglio chiedere come giustamente hai fatto.
A mio avviso ci sono svariati punti oscuri:
1) ti preoccupi delle sezioni e tipo di cavi ma non indichi le caratteristiche degli interruttori: a che serve?
2) il PDC è a valle di M1 non a monte.
3) i cavi nel rettangolo rosso ed a valle di questo potrebbero non sono protetti dal cortocircuito, da quanto è il DG? 10A? 32A?
4) lo schema potrebbe non essere rappresentativo della reale situazione: nella zona del rettangolo rosso quanti conduttori effettivamente ci sono/saranno? 3? 4? 5? 6?Occorre mettere i trattini giusti. Ma è effettivamente così? UNA linea che parte da un punto di parallelo e finisce in un altro punto di parallelo? Oppure sono 2 linee diverse che viaggiano parallele?
5) il neutro che dimensione avrebbe? Quanta corrente ci scorre? È idoneamente protetto? Ed il PE?
6) se non ho compreso male è un ampliamento, quindi la linea nel rettangolo rosso era esistente e presumibilmente da 4mm², quindi anche il neutro da 4mm², ora tale è rimasto? Quanti neutri ci sono in quel tratto?
7) perché hai esploso l'inverter? È effettivamente in pezzi separati? Da tablet l'immagine non si vede bene, quindi non capisco se vi sono ad es. dei rettangoli che racchiudono i vari pezzi.
8) i DDG sono diversi, io metterei una numerazione (es. DDG1 DDG2)
9) non vedo le caratteristiche degli SPD...
10) indicherei che una sezione è esistente ed una aggiuntiva
Vorrei ricordare che la corrente elettrica è mortale e non va presa sottogamba. Per cui meglio chiedere come giustamente hai fatto.
0
voti
GioArca67 ha scritto:Per cortesia gli schemi in Fidocadj!! E non sarebbe nemmeno da dire...
A mio avviso ci sono svariati punti oscuri:
1) ti preoccupi delle sezioni e tipo di cavi ma non indichi le caratteristiche degli interruttori: a che serve?
2) il PDC è a valle di M1 non a monte.
3) i cavi nel rettangolo rosso ed a valle di questo potrebbero non sono protetti dal cortocircuito, da quanto è il DG? 10A? 32A?
4) lo schema potrebbe non essere rappresentativo della reale situazione: nella zona del rettangolo rosso quanti conduttori effettivamente ci sono/saranno? 3? 4? 5? 6?Occorre mettere i trattini giusti. Ma è effettivamente così? UNA linea che parte da un punto di parallelo e finisce in un altro punto di parallelo? Oppure sono 2 linee diverse che viaggiano parallele?
5) il neutro che dimensione avrebbe? Quanta corrente ci scorre? È idoneamente protetto? Ed il PE?
6) se non ho compreso male è un ampliamento, quindi la linea nel rettangolo rosso era esistente e presumibilmente da 4mm², quindi anche il neutro da 4mm², ora tale è rimasto? Quanti neutri ci sono in quel tratto?
7) perché hai esploso l'inverter? È effettivamente in pezzi separati? Da tablet l'immagine non si vede bene, quindi non capisco se vi sono ad es. dei rettangoli che racchiudono i vari pezzi.
8) i DDG sono diversi, io metterei una numerazione (es. DDG1 DDG2)
9) non vedo le caratteristiche degli SPD...
10) indicherei che una sezione è esistente ed una aggiuntiva
Vorrei ricordare che la corrente elettrica è mortale e non va presa sottogamba. Per cui meglio chiedere come giustamente hai fatto.
Provo a rispondere a tutti i tuoi quesiti
1) gli interruttori sono i seguenti: DDG1 dell'impianto esistente da 3 kW (nello schema è il ramo a destra) magnetotermico differenziale bipolare 300 mA Tipo A 20 A 4,5 kA Curva C; interruttore magnetotermico bipolare 20 A 4,5 kA Curva C a monte (lato rete) del contatore di produzione. Per la nuova sezione di impianto da 6 kW il DDG2 è un magnetotermico differenziale bipolare 300 mA Tipo A 32 A 4,5 kA Curva C; interruttore magnetotermico bipolare 32 A 4,5 kA Curva C a monte (lato rete) del contatore di produzione. Il DG è un interruttore magnetotermico quadripolare 32 A 10 kA Curva C.
2) il punto di consegna è indicato in modo errato perché il programma Solarius, non so per quale motivo, lo indica a monte del contatore di scambio M1
4) All'interno del rettangolo rosso ho una fase e un neutro dell'impianto esistente (sezione 4 mm2) e una fase e un neutro del nuovo impianto (6 mm2), quindi sono due linee diverse che si collegano o a) a valle del DG quadripolare oppure b) a monte dell'interruttore generale quadripolare posto nel quadro utente oppure c) a monte degli interruttori generali bipolari delle delle due fasi posti nel quadro utente.
5) neutro con stessa sezione di fase quindi 4mm2 per l'impianto da 3 kW e 6 mm2 per l'impianto da 6 kW; sezione PE pari a 4 mm2
7) l'inverter con SPI e DDI sono inseriti in un rettangolo, che purtroppo non è ben visibile, e sono integrati all'inverter.
9) gli spd sono di tipo 2 (classe II) con Uc ≥ 1000 VDC, Up ≤ 2,5 kV e Imax ≥ 5kA per la corrente continua, per l'alternata Uc ≥ 253 V, Up ≤ 1,5 kV e Imax ≥ 5kA
22 messaggi
• Pagina 1 di 3 • 1, 2, 3
Torna a Energia e qualità dell'energia
Chi c’è in linea
Visitano il forum: Nessuno e 14 ospiti

Elettrotecnica e non solo (admin)
Un gatto tra gli elettroni (IsidoroKZ)
Esperienza e simulazioni (g.schgor)
Moleskine di un idraulico (RenzoDF)
Il Blog di ElectroYou (webmaster)
Idee microcontrollate (TardoFreak)
PICcoli grandi PICMicro (Paolino)
Il blog elettrico di carloc (carloc)
DirtEYblooog (dirtydeeds)
Di tutto... un po' (jordan20)
AK47 (lillo)
Esperienze elettroniche (marco438)
Telecomunicazioni musicali (clavicordo)
Automazione ed Elettronica (gustavo)
Direttive per la sicurezza (ErnestoCappelletti)
EYnfo dall'Alaska (mir)
Apriamo il quadro! (attilio)
H7-25 (asdf)
Passione Elettrica (massimob)
Elettroni a spasso (guidob)
Bloguerra (guerra)



