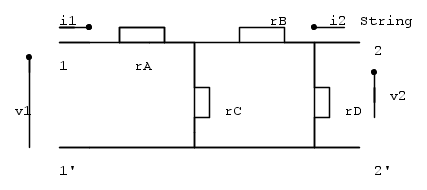
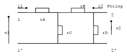
mi trovo a risolvere un esercizio del genere con i doppi bipoli dove mi si chiede di determinare la matrice delle resistenze;Per il calcolo di R11 e R22 tutto ok; per calcolare invece Rm il mio professore dice di fare una cose del genere..
...e scrive che v2=rCi2*[rD:(rD+Rb+rC)] e che quindi rM=rC*rD:(rC+rD+rB)..
sapreste spiegarmi gentilmente questi passaggi?? sono due giorni che ci rifletto e ve ne sarei estremamente grato..

Elettrotecnica e non solo (admin)
Un gatto tra gli elettroni (IsidoroKZ)
Esperienza e simulazioni (g.schgor)
Moleskine di un idraulico (RenzoDF)
Il Blog di ElectroYou (webmaster)
Idee microcontrollate (TardoFreak)
PICcoli grandi PICMicro (Paolino)
Il blog elettrico di carloc (carloc)
DirtEYblooog (dirtydeeds)
Di tutto... un po' (jordan20)
AK47 (lillo)
Esperienze elettroniche (marco438)
Telecomunicazioni musicali (clavicordo)
Automazione ed Elettronica (gustavo)
Direttive per la sicurezza (ErnestoCappelletti)
EYnfo dall'Alaska (mir)
Apriamo il quadro! (attilio)
H7-25 (asdf)
Passione Elettrica (massimob)
Elettroni a spasso (guidob)
Bloguerra (guerra)









