Buonasera a tutti,
devo realizzare un impianto in una azienda agricola e ho alcuni dubbi su alcune richieste che mi sono state effettuate.
Mi sono interfacciato con l'azienda che attualmente sta installando/predisponendo le diverse apparecchiature zootecniche necessarie. E' presente un sistema per il deposito/refrigerazione del latte integrato con quello di mungitura che presenta dispositivi elettronici e per maggior sicurezza come protezione dalle scariche atmosferiche mi hanno consigliato di prevedere una presa a monte del quadro di tale apparecchiatura per avere un sezionamento fisico più efficace. La richiesta mi sembra alquanto strana. E' fattibile, da un punto di vista normativo, una cosa del genere?
Mi hanno chiesto inoltre di porre molta cura nella messa a terra nella stalla. Secondo voi basta una semplice messa a terra di tutte le strutture metalliche qui presenti o devo porre più attenzione?
Infine c'è il locale deposito paglia. Premetto che io qui non vorrei installare nulla, ma mi è stato chiesto di prevedere un solo punto luce. Io metterei l'accensione dello stesso all'esterno del locale e la sola plafoniera all'interno.
Grazie in anticipo per gli eventuali consigli.
Impianto elettrico per azienda agricola
Moderatori:
sebago,
MASSIMO-G,
lillo,
Mike
7 messaggi
• Pagina 1 di 1
0
voti
0
voti
hawk70 ha scritto:E' presente un sistema per il deposito/refrigerazione del latte integrato con quello di mungitura che presenta dispositivi elettronici e per maggior sicurezza come protezione dalle scariche atmosferiche mi hanno consigliato di prevedere una presa a monte del quadro di tale apparecchiatura per avere un sezionamento fisico più efficace. La richiesta mi sembra alquanto strana. E' fattibile, da un punto di vista normativo, una cosa del genere?
Temo di non aver capito.
Mi hanno chiesto inoltre di porre molta cura nella messa a terra nella stalla. Secondo voi basta una semplice messa a terra di tutte le strutture metalliche qui presenti o devo porre più attenzione?
Fai riferimento alla CEI 64-8. lì c'è tutto quello che ti occorre.
Infine c'è il locale deposito paglia. Premetto che io qui non vorrei installare nulla, ma mi è stato chiesto di prevedere un solo punto luce. Io metterei l'accensione dello stesso all'esterno del locale e la sola plafoniera all'interno.
Ragionevole.
-

Giovepluvio
5.978 3 6 10 - G.Master EY

- Messaggi: 2947
- Iscritto il: 21 dic 2010, 1:10
- Località: Mantova
0
voti
Grazie per la risposta innanzitutto.
La ditta installatrice delle apparecchiature zootecniche consiglia di inserire a monte del quadro di alimentazione di tali apparecchiature una presa a spina che di fatto permetta di interrompere in maniera netta la montante di alimentazione del quadro in presenza di temporali.
La soluzione, anche se efficace non mi convince pienamente, anche se non so se dal punto di vista normativo è consentita o meno.
Grazie.
Giovepluvio ha scritto:hawk70 ha scritto:E' presente un sistema per il deposito/refrigerazione del latte integrato con quello di mungitura che presenta dispositivi elettronici e per maggior sicurezza come protezione dalle scariche atmosferiche mi hanno consigliato di prevedere una presa a monte del quadro di tale apparecchiatura per avere un sezionamento fisico più efficace. La richiesta mi sembra alquanto strana. E' fattibile, da un punto di vista normativo, una cosa del genere?
Temo di non aver capito.
La ditta installatrice delle apparecchiature zootecniche consiglia di inserire a monte del quadro di alimentazione di tali apparecchiature una presa a spina che di fatto permetta di interrompere in maniera netta la montante di alimentazione del quadro in presenza di temporali.
La soluzione, anche se efficace non mi convince pienamente, anche se non so se dal punto di vista normativo è consentita o meno.
Grazie.
0
voti
Se l'apparecchiatura la forniscono inclusa di alimentazione da spina direi che non vedo particolari problemi normativi.
Inutile dire che lo stesso scopo si può raggiungere tranquillamente sezionando in un quadro di derivazione.
Inutile dire che lo stesso scopo si può raggiungere tranquillamente sezionando in un quadro di derivazione.
-

Giovepluvio
5.978 3 6 10 - G.Master EY

- Messaggi: 2947
- Iscritto il: 21 dic 2010, 1:10
- Località: Mantova
2
voti
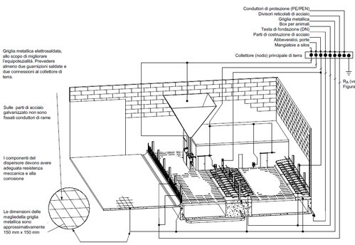
Innanzitutto ti consiglio di far predisporre una griglia metallica nella zona di ricovero degli animali, ricordati che la tensione di contatto convenzionale non è di 50V bensì 25V, sui circuiti prese fino a 32A DEVI installare un differenziale con Idn da 0,03A e sulle prese superiori a 32A il differenziale non deve superare lo 0,1A inoltre nei circuiti terminali con grado di protezione <IP4x il differenziale non deve superare lo 0,3A.
Le apparecchiature elettriche devono presentare un grado di protezione deve essere come minimo IP44 nelle condizioni di esercizio ordinarie e devono essere inaccessibili agli animali.
Se l'approvvigionamento del cibo, acqua o aria agli animali è fornito in maniera automatica si deve prevede una sorgente elettrica di riserva che deve essere indipendente dai circuiti ordinari.
I cavi se interrati devo esser posizionati entro tubi protettivi 450 o 750 almeno a 0,5m di profondità, se il terreno è arabile devono esser interrati almeno ad 1m.
Le apparecchiature elettriche devono presentare un grado di protezione deve essere come minimo IP44 nelle condizioni di esercizio ordinarie e devono essere inaccessibili agli animali.
Se l'approvvigionamento del cibo, acqua o aria agli animali è fornito in maniera automatica si deve prevede una sorgente elettrica di riserva che deve essere indipendente dai circuiti ordinari.
I cavi se interrati devo esser posizionati entro tubi protettivi 450 o 750 almeno a 0,5m di profondità, se il terreno è arabile devono esser interrati almeno ad 1m.
non ci sono problemi, ma solo soluzioni
0
voti
hawk70 ha scritto:... E' fattibile, da un punto di vista normativo, una cosa del genere?
Certo che sì, devi installare una semplice presa, qual è la tua perplessità?
hawk70 ha scritto:Mi hanno chiesto inoltre di porre molta cura nella messa a terra nella stalla. Secondo voi basta una semplice messa a terra di tutte le strutture metalliche qui presenti o devo porre più attenzione?
Ai fini della protezione dai contatti indiretti c'è l'obbligo dell'equipotenzialità delle strutture metalliche; ai fini della protezione dalla scariche atmosferiche indirette potrebbe essere requisito non sufficiente per una zona LPZ0, sempre che ci sia la necessità di rispondere a quei requisiti.
hawk70 ha scritto:Infine c'è il locale deposito paglia. Premetto che io qui non vorrei installare nulla, ma mi è stato chiesto di prevedere un solo punto luce. Io metterei l'accensione dello stesso all'esterno del locale e la sola plafoniera all'interno.
Con un grado di protezione IP 40 ed una plafoniera dichiarata idonea per superfici infiammabili non ci sono problemi anche se l'interruttore è all'interno.
--
Michele Lysander Guetta
--
"Non pensare mai al dolore, al pericolo o ai nemici un momento più lungo del necessario per combatterli." — Ayn Rand
Michele Lysander Guetta
--
"Non pensare mai al dolore, al pericolo o ai nemici un momento più lungo del necessario per combatterli." — Ayn Rand
-

Mike
55,6k 7 10 12 - G.Master EY

- Messaggi: 17006
- Iscritto il: 1 ott 2004, 18:25
- Località: Conegliano (TV)
0
voti
Ho scritto qualcosa in merito a questo argomento http://www.electroyou.it/iosolo35/wiki/ ... zootecnico
non ci sono problemi, ma solo soluzioni
7 messaggi
• Pagina 1 di 1
Torna a Impianti, sicurezza e quadristica
Chi c’è in linea
Visitano il forum: Nessuno e 50 ospiti

Elettrotecnica e non solo (admin)
Un gatto tra gli elettroni (IsidoroKZ)
Esperienza e simulazioni (g.schgor)
Moleskine di un idraulico (RenzoDF)
Il Blog di ElectroYou (webmaster)
Idee microcontrollate (TardoFreak)
PICcoli grandi PICMicro (Paolino)
Il blog elettrico di carloc (carloc)
DirtEYblooog (dirtydeeds)
Di tutto... un po' (jordan20)
AK47 (lillo)
Esperienze elettroniche (marco438)
Telecomunicazioni musicali (clavicordo)
Automazione ed Elettronica (gustavo)
Direttive per la sicurezza (ErnestoCappelletti)
EYnfo dall'Alaska (mir)
Apriamo il quadro! (attilio)
H7-25 (asdf)
Passione Elettrica (massimob)
Elettroni a spasso (guidob)
Bloguerra (guerra)
