Ho un dubbio
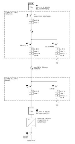
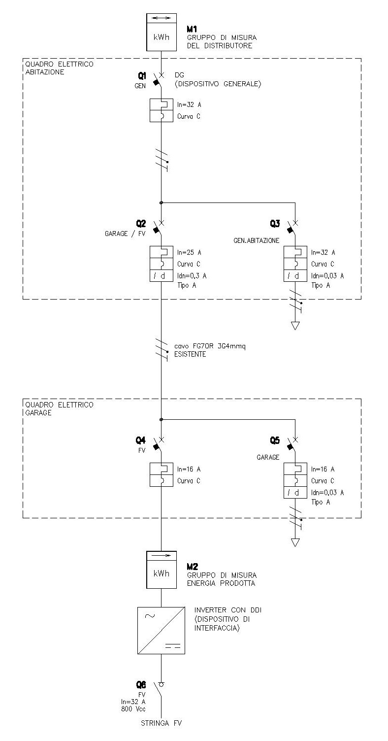
un impianto fotovoltaico da 3 kWp può essere collegato a valle su un sottoquadro come nello schema allegato?
Leggendo la cei 0-12 non mi pare ci siano controindicazioni.
Grazie.
Collegamento impianto fotovoltaico a valle
Moderatori:
sebago,
MASSIMO-G,
lillo,
Mike
16 messaggi
• Pagina 1 di 2 • 1, 2
0
voti
E' fattibile. Perché non dovrebbe esserlo?
-

Giovepluvio
5.978 3 6 10 - G.Master EY

- Messaggi: 2947
- Iscritto il: 21 dic 2010, 1:10
- Località: Mantova
0
voti
Giovepluvio ha scritto:E' fattibile. Perché non dovrebbe esserlo?
Grazie Giovepluvio

Il dubbio mi era venuto perché tutti gli impianti che ho avuto modo di visionare avevano il FV collegato a monte sul quadro generale.
Eh si sono ancora un principiante rispetto a voi guru
0
voti
Quello si fa più che altro perché, in genere, il DG di una abitazione è un interruttore con relè differenziale da 30 mA di corrente nominale (classe AC).
-

Giovepluvio
5.978 3 6 10 - G.Master EY

- Messaggi: 2947
- Iscritto il: 21 dic 2010, 1:10
- Località: Mantova
0
voti
Buon pomeriggio,
da molti anni non mi occupo più di progettazione di FV, ma mi sono trovato di recente dall'altra parte della scrivania come cliente di un installatore. Cioè ho commissionato un impianto da 6kWp per casa mia.
Il mio dubbio riguarda il tema di questo post. E' cambiato qualcosa a livello normativo? Leggendo la CEI 0-21 vedo che tra gli schemi ammessi vi è quello che prevede la connessione dell'impianto a valle di un generico DG di un quadro di primo livello a valle del contatore enel domestico (c.d. di scambio), quindi sembrerebbe di sì.
Nel mio caso, andando dietro all'abitudine del passato consideravo fattibile lo schema di principio proposto da
blueice80. E' sempre valida? Cioè è consentito connettere l'impianto FV ad una partenza di un sottoquadro rispetto al centralino domestico principale? Subito a monte dell'inverter l'installatore ha previsto un centralino con un DG apposito, poi si scende al contatore di produzione, e da lì alla partenza del suddetto sottoquadro.
Grazie
da molti anni non mi occupo più di progettazione di FV, ma mi sono trovato di recente dall'altra parte della scrivania come cliente di un installatore. Cioè ho commissionato un impianto da 6kWp per casa mia.
Il mio dubbio riguarda il tema di questo post. E' cambiato qualcosa a livello normativo? Leggendo la CEI 0-21 vedo che tra gli schemi ammessi vi è quello che prevede la connessione dell'impianto a valle di un generico DG di un quadro di primo livello a valle del contatore enel domestico (c.d. di scambio), quindi sembrerebbe di sì.
Nel mio caso, andando dietro all'abitudine del passato consideravo fattibile lo schema di principio proposto da
Grazie
0
voti
nella fretta ho scritto (almeno) un paio di stupidaggini.
"Subito a monte dell'inverter l'installatore ha previsto un centralino con un DG apposito"
intendevo subito a valle, e non si può definire DG.. è un MT C32 + Diff 0.3A..
grazie
"Subito a monte dell'inverter l'installatore ha previsto un centralino con un DG apposito"
intendevo subito a valle, e non si può definire DG.. è un MT C32 + Diff 0.3A..
grazie
0
voti
Danielex ha scritto:si va bene.
grazie mille.
Praticamente le protezioni diff da 0,03 (impianto TT domestico monofase) sono solo sulle singole partenze dei circuiti terminali. Dal contatore di scambio all'inverter vi sono solo montanti o centralini in classe II quindi protetti da MT, l'unico differenziale è in uscita all'inverter ed è da 300mA.
Lo preciso in quanto mi sembra che il motivo principale per cui si privilegia la connessione a monte del DG sul centralino domestico è quello di evitare il 30mA che potrebbe intervenire intempestivamente.
Ma questa soluzione in voga di collegare il FV a monte del DG non è in contrasto con la CEI 0-21?
1
voti
A monte del DG non si può collegare.
Il DG è il Dispositivo Generale di tutto l'impianto.
A valle avrai ancora il DDG (Dispositivo di generatore) che è l'interruttorre MTD (300 mA tipo A) installato a protezione dell'inverter.
Ovvio che devi preoccuparti di garantire la protezione dai contatti indiretti in tutto l'impianto (con differenziale o doppio isolamento).
Il DG è il Dispositivo Generale di tutto l'impianto.
A valle avrai ancora il DDG (Dispositivo di generatore) che è l'interruttorre MTD (300 mA tipo A) installato a protezione dell'inverter.
Ovvio che devi preoccuparti di garantire la protezione dai contatti indiretti in tutto l'impianto (con differenziale o doppio isolamento).
16 messaggi
• Pagina 1 di 2 • 1, 2
Torna a Impianti, sicurezza e quadristica
Chi c’è in linea
Visitano il forum: Google Adsense [Bot] e 43 ospiti

Elettrotecnica e non solo (admin)
Un gatto tra gli elettroni (IsidoroKZ)
Esperienza e simulazioni (g.schgor)
Moleskine di un idraulico (RenzoDF)
Il Blog di ElectroYou (webmaster)
Idee microcontrollate (TardoFreak)
PICcoli grandi PICMicro (Paolino)
Il blog elettrico di carloc (carloc)
DirtEYblooog (dirtydeeds)
Di tutto... un po' (jordan20)
AK47 (lillo)
Esperienze elettroniche (marco438)
Telecomunicazioni musicali (clavicordo)
Automazione ed Elettronica (gustavo)
Direttive per la sicurezza (ErnestoCappelletti)
EYnfo dall'Alaska (mir)
Apriamo il quadro! (attilio)
H7-25 (asdf)
Passione Elettrica (massimob)
Elettroni a spasso (guidob)
Bloguerra (guerra)




