P.S. Sarei molto felice se l'esercizio venisse risolto oggi.
Impianto elettrico di una abitazione
Moderatori:
sebago,
MASSIMO-G,
lillo,
Mike
5 messaggi
• Pagina 1 di 1
-2
voti
Ciao, avrei una piccola problema con un esercizio di impanti elettrici, c'è qualcuno che mi potrebbe aiutare?
P.S. Sarei molto felice se l'esercizio venisse risolto oggi.
P.S. Sarei molto felice se l'esercizio venisse risolto oggi.
Ultima modifica di
lillo il 17 apr 2020, 9:47, modificato 2 volte in totale.
Motivazione: Titolo riscritto in minuscolo
Motivazione: Titolo riscritto in minuscolo
3
voti
DokiAlin ha scritto:(...) Sarei molto felice se l'esercizio venisse risolto oggi.![]()
per oggi non credo, penso abbiano già lasciato gli uffici, infatti io che sto facendo le pulizie vedo le scrivanie vuote.
Saluti
W - U.H.F.
-

WALTERmwp
30,2k 4 8 13 - G.Master EY

- Messaggi: 8990
- Iscritto il: 17 lug 2010, 18:42
- Località: le 4 del mattino
3
voti
Penso che impareresti di più se ci dicessi in quali punti del problema incontri difficoltà e cosa sei riuscito a fare fino ad ora, supponendo che tu ci abbia provato.
Ognuno sta solo sul cuor della terra
trafitto da un raggio di sole:
ed è subito sera
Salvatore Quasimodo
trafitto da un raggio di sole:
ed è subito sera
Salvatore Quasimodo
0
voti
Partiamo da qui e, se ci dai una mano a capire dove ti fermi, continuiamo
Guardando lo schema cosa ti viene da chiedere?
Hai pensato delle soluzioni?
Se vuoi usare FidocadJ per gli schemi risulta più facile aiutarti
Guardando lo schema cosa ti viene da chiedere?
Hai pensato delle soluzioni?
Se vuoi usare FidocadJ per gli schemi risulta più facile aiutarti
⋮ƎlectroYou e ne sai di più!
0
voti
CIAO, considerando che effettivamente dovresti provare a svolgerlo da solo e se hai dubbi, chiedere aiuto.
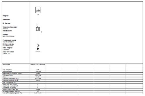
in allegato ti posto una delle possibili soluzioni. Le sezioni considerale come dorsali. A te spetta capire le derivazioni ed il perché.
Nel caso di problemi poni una domanda.
Saluti.
in allegato ti posto una delle possibili soluzioni. Le sezioni considerale come dorsali. A te spetta capire le derivazioni ed il perché.
Nel caso di problemi poni una domanda.
Saluti.

5 messaggi
• Pagina 1 di 1
Torna a Impianti, sicurezza e quadristica
Chi c’è in linea
Visitano il forum: Nessuno e 149 ospiti

Elettrotecnica e non solo (admin)
Un gatto tra gli elettroni (IsidoroKZ)
Esperienza e simulazioni (g.schgor)
Moleskine di un idraulico (RenzoDF)
Il Blog di ElectroYou (webmaster)
Idee microcontrollate (TardoFreak)
PICcoli grandi PICMicro (Paolino)
Il blog elettrico di carloc (carloc)
DirtEYblooog (dirtydeeds)
Di tutto... un po' (jordan20)
AK47 (lillo)
Esperienze elettroniche (marco438)
Telecomunicazioni musicali (clavicordo)
Automazione ed Elettronica (gustavo)
Direttive per la sicurezza (ErnestoCappelletti)
EYnfo dall'Alaska (mir)
Apriamo il quadro! (attilio)
H7-25 (asdf)
Passione Elettrica (massimob)
Elettroni a spasso (guidob)
Bloguerra (guerra)





