Buongiorno a tutti.
Mi chiamo Marco e volevo sottoporvi una richiesta, sperando di essere nel Forum corretto.
Dispongo di un impianto FV da 3 kW a cui successivamente è stato aggiunto un sistema di accumulo, le cui batterie sono alimentate da un inverter separato da quello del fotovoltaico.
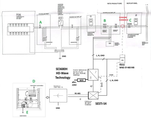
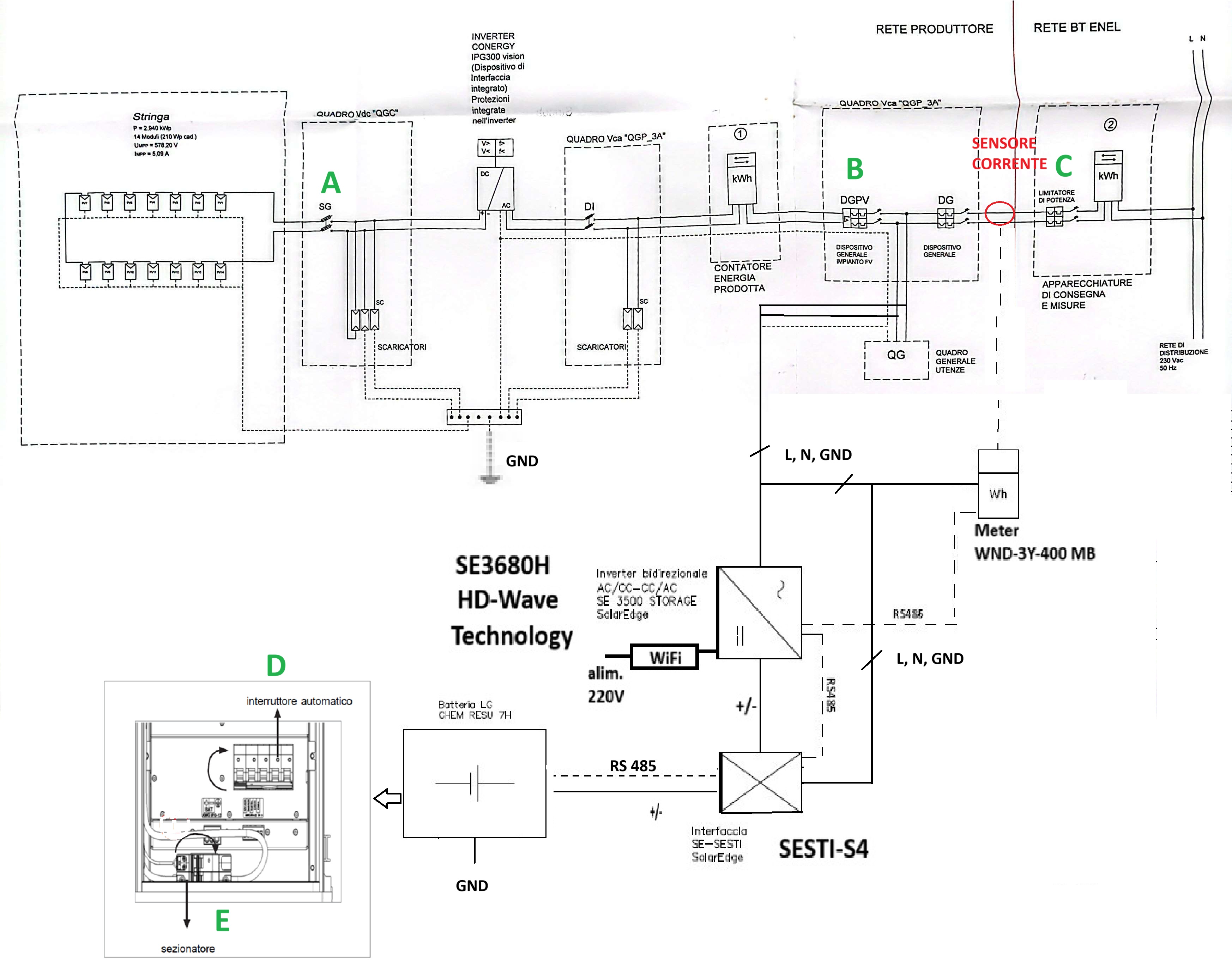
Questo lo schema
Devo fare un intervento sul quadro elettrico principale di casa e quindi devo spegnere ogni fonte di energia.
Navigando in rete, ho appreso che Fotovoltaico e Accumulo devono essere spenti/riaccesi in una sequenza rigorosa.
Da quel che ho capito, questa dovrebbe essere la corretta sequenza di spegnimento:
1. Stacco le stringhe fotovoltaiche con l'apposito sezionatore A
2. Stacco l'inverter Conergy del Fotovoltaico con il sezionatore B
3. Stacco l'ingresso di corrente elettrica dal Gestore tramite C
4. Stacco l'Interruttore Automatico delle batterie D
5. Stacco il sezionatore delle batterie E
Alla fine dei miei lavori, riattivo tutto in sequenza opposta.
E' corretto quanto dico?
Vi ringrazio
Sequenza spegnimento/accensione fotovoltaico con accumulo
Moderatori:
sebago,
MASSIMO-G,
lillo,
Mike
7 messaggi
• Pagina 1 di 1
0
voti
Lo schema elettrico non è chiaro.
Dove sono D ed E? Intendo fra quali elementi?
I sezionatori non sono pensati per essere aperti sotto carico quindi meglio apro B poi apro A
L'uscita dell'inverter Solaredge SE3680H ed il cavo di collegamento dovrebbero essere protetti con un interruttore automatico (forse nel quadro), apri anche quello.
Dove sono D ed E? Intendo fra quali elementi?
I sezionatori non sono pensati per essere aperti sotto carico quindi meglio apro B poi apro A
L'uscita dell'inverter Solaredge SE3680H ed il cavo di collegamento dovrebbero essere protetti con un interruttore automatico (forse nel quadro), apri anche quello.
0
voti
Grazie mille per la risposta.
Hai ragione ad osservare che lo schema non è chiaro: è una mia ricostruzione perché l'installatore dell'accumulo non mi ha lasciato alcuna documentazione tecnica.
D ed E sono dietro uno sportello nel corpo batteria. Segue una foto:
Nel libretto di istruzioni della batteria si dice perentoriamente di staccare prima D e poi E.
Ti confermo che l'uscita del Solaredge SE3680H si collega, nel quadro generale, a tutte le utenze, senza alcun interruttore automatico (intendi un magnetermico o anche differenziale?)
Ciao
Hai ragione ad osservare che lo schema non è chiaro: è una mia ricostruzione perché l'installatore dell'accumulo non mi ha lasciato alcuna documentazione tecnica.
D ed E sono dietro uno sportello nel corpo batteria. Segue una foto:
Nel libretto di istruzioni della batteria si dice perentoriamente di staccare prima D e poi E.
Ti confermo che l'uscita del Solaredge SE3680H si collega, nel quadro generale, a tutte le utenze, senza alcun interruttore automatico (intendi un magnetermico o anche differenziale?)
Ciao
0
voti
Prima di aprire A apri B
Metti una foto dei dati di targa degli inverter, cancellando il seriale che tanto non serve per quel che volevo controllare
Metti una foto dei dati di targa degli inverter, cancellando il seriale che tanto non serve per quel che volevo controllare
0
voti
Eccoli:
Ho capito il tuo ragionamento secondo cui i sezionatori non sono pensati per essere aperti sotto carico quindi è meglio aprire B poi A; ma a quel punto, se ho già aperto B, non capisco il motivo per cui debba aprire A. Il fotovoltaio non è stato già escluso dal quadro dove devo intervenire?
Beninteso: non mi costa nulla azionare anche A, era giusto per capire
Sempre grazie e buona serata
Ho capito il tuo ragionamento secondo cui i sezionatori non sono pensati per essere aperti sotto carico quindi è meglio aprire B poi A; ma a quel punto, se ho già aperto B, non capisco il motivo per cui debba aprire A. Il fotovoltaio non è stato già escluso dal quadro dove devo intervenire?
Beninteso: non mi costa nulla azionare anche A, era giusto per capire
Sempre grazie e buona serata
0
voti
Sì non è necessario aprire anche A se occorre lavorare nel quadro utenze di casa QG.
A mio avviso nel tuo caso serve progetto di un professionista poiché la potenza nominale complessiva in AC di Inverter fv + inverter accumulo supera i 6 kW:
A mio avviso nel tuo caso serve progetto di un professionista poiché la potenza nominale complessiva in AC di Inverter fv + inverter accumulo supera i 6 kW:
DM 37/08 art. 2
b) potenza impegnata: il valore maggiore tra la potenza impegnata contrattualmente con l'eventuale fornitore di energia, e la potenza nominale complessiva degli impianti di autoproduzione eventualmente installati;
0
voti
Accolgo sicuramente il tuo avvertimento.
Peraltro il mio impianto FV (sovvenzionato dal II conto Energia) sta diventando maggiorenne e quindi è opportuno iniziare a fare dei ragionamenti sul suo futuro.
Ancora grazie per il tempo che mi hai dedicato.
Ciao
Peraltro il mio impianto FV (sovvenzionato dal II conto Energia) sta diventando maggiorenne e quindi è opportuno iniziare a fare dei ragionamenti sul suo futuro.
Ancora grazie per il tempo che mi hai dedicato.
Ciao
7 messaggi
• Pagina 1 di 1
Torna a Impianti, sicurezza e quadristica
Chi c’è in linea
Visitano il forum: Nessuno e 47 ospiti

Elettrotecnica e non solo (admin)
Un gatto tra gli elettroni (IsidoroKZ)
Esperienza e simulazioni (g.schgor)
Moleskine di un idraulico (RenzoDF)
Il Blog di ElectroYou (webmaster)
Idee microcontrollate (TardoFreak)
PICcoli grandi PICMicro (Paolino)
Il blog elettrico di carloc (carloc)
DirtEYblooog (dirtydeeds)
Di tutto... un po' (jordan20)
AK47 (lillo)
Esperienze elettroniche (marco438)
Telecomunicazioni musicali (clavicordo)
Automazione ed Elettronica (gustavo)
Direttive per la sicurezza (ErnestoCappelletti)
EYnfo dall'Alaska (mir)
Apriamo il quadro! (attilio)
H7-25 (asdf)
Passione Elettrica (massimob)
Elettroni a spasso (guidob)
Bloguerra (guerra)

