Circuito che ogni 5 minuti inverte la polarità
Moderatori:
carloc,
g.schgor,
BrunoValente,
IsidoroKZ
43 messaggi
• Pagina 1 di 5 • 1, 2, 3, 4, 5
0
voti
Salve a tutti ragazzi...avrei bisogno di realizzare un circuito che ogni 5 minuti invii un impulso per un tempo di qualche secondo impostabile, inoltre avrei bisogno che ogni volta che riceve l'impulso inverta la polarità...secondo voi la cosa è fattibile?
0
voti
Certo che e` fattibile!
Per usare proficuamente un simulatore, bisogna sapere molta più elettronica di lui
Plug it in - it works better!
Il 555 sta all'elettronica come Arduino all'informatica! (entrambi loro malgrado)
Se volete risposte rispondete a tutte le mie domande
Plug it in - it works better!
Il 555 sta all'elettronica come Arduino all'informatica! (entrambi loro malgrado)
Se volete risposte rispondete a tutte le mie domande
0
voti
Per essere fattile, lo è, (come ti è già stato detto). Poi, invece, il come lo sia, è un altro mondo.
Rispondi agli interventi fatti e spiega senza tue interpretazioni intermedie, il problema.
Rispondi agli interventi fatti e spiega senza tue interpretazioni intermedie, il problema.
-

Candy
32,5k 7 10 13 - CRU - Account cancellato su Richiesta utente
- Messaggi: 10123
- Iscritto il: 14 giu 2010, 22:54
0
voti
salve a tutti, grazie per le risposte...allora ciò che devo fare è un circuito che gestisca una motorizzazione....il motore è un 12v...tutto il circuito alimentato a 12v...mi serve per creare una sorta di "brandeggio" ad una videocamera...
0
voti
Giusto per capirci, il brandeggio avrà dei punti limite da gestire con dei finecorsa ?
E sempre per capire come aiutarti, hai esperienze con fili, contatti, tensioni, correnti, contatti normalmente chiusi, etc. ?
Intanto dai un'occhiata a questo e vedi se può essere un punto di partenza
http://www.findernet.com/it/products/sku/809102400000/
http://www.findernet.com/it/products/sku/601290120000/
http://www.findernet.com/it/products/sku/9002SMA/
http://www.findernet.com/it/products/sku/202190120000/
E sempre per capire come aiutarti, hai esperienze con fili, contatti, tensioni, correnti, contatti normalmente chiusi, etc. ?
Intanto dai un'occhiata a questo e vedi se può essere un punto di partenza
http://www.findernet.com/it/products/sku/809102400000/
http://www.findernet.com/it/products/sku/601290120000/
http://www.findernet.com/it/products/sku/9002SMA/
http://www.findernet.com/it/products/sku/202190120000/
0
voti
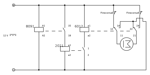
Se ti vanno bene quei relè puoi provare con questo schema.
8091 è un intermittenza di cui puoi regolare il tempo di ON ed il tempo di OFF
2021 cambia di stato ogni volta che 8081 va ON
6012 inverte l'alimentazione al motore ed i finecorsa ne limitano la rotazione. (attento a che corrispondano al relativo verso quando colleghi motore e finecorsa).
Si può fare in tanti altri modi o con prodotti simili di altre marche che magari trovi più facilmente da qualche rivenditore della tua zona.
8091 è un intermittenza di cui puoi regolare il tempo di ON ed il tempo di OFF
2021 cambia di stato ogni volta che 8081 va ON
6012 inverte l'alimentazione al motore ed i finecorsa ne limitano la rotazione. (attento a che corrispondano al relativo verso quando colleghi motore e finecorsa).
Si può fare in tanti altri modi o con prodotti simili di altre marche che magari trovi più facilmente da qualche rivenditore della tua zona.
0
voti
peppe91 ha scritto:un circuito che gestisca una motorizzazione....il motore è un 12 V...tutto il circuito alimentato a 12 V...mi serve per creare una sorta di "brandeggio" ad una videocamera...
E' chiedere troppo conoscere le caratteristiche del motore (oltre i volt anche gli ampere,tipo di motore a che velocita' deve girare ecc.) e della fonte di alimentazione?
Quando si comincia a progettare qualcosa, bisogna prima chiarirsi bene le idee.
marco
0
voti
(OT) Salve a tutti, io ho realizzato questo tipo dicircuito utilizzando un 555 in astabile ed un relè a doppio scambio per pilotare un motore 12 v.. siccome il 555 ha una uscita max di 200mA, ho deciso di utilizzare un mosfet (precisamente irf540n) che va alla bobina del relè...il problema è che dopo un paio di scambi l'alimentatore va in protezione..mi spiegate cosa può essere accaduto?
-

futuredj95
11 1 5 - New entry

- Messaggi: 96
- Iscritto il: 29 dic 2010, 22:04
43 messaggi
• Pagina 1 di 5 • 1, 2, 3, 4, 5
Chi c’è in linea
Visitano il forum: Nessuno e 239 ospiti

Elettrotecnica e non solo (admin)
Un gatto tra gli elettroni (IsidoroKZ)
Esperienza e simulazioni (g.schgor)
Moleskine di un idraulico (RenzoDF)
Il Blog di ElectroYou (webmaster)
Idee microcontrollate (TardoFreak)
PICcoli grandi PICMicro (Paolino)
Il blog elettrico di carloc (carloc)
DirtEYblooog (dirtydeeds)
Di tutto... un po' (jordan20)
AK47 (lillo)
Esperienze elettroniche (marco438)
Telecomunicazioni musicali (clavicordo)
Automazione ed Elettronica (gustavo)
Direttive per la sicurezza (ErnestoCappelletti)
EYnfo dall'Alaska (mir)
Apriamo il quadro! (attilio)
H7-25 (asdf)
Passione Elettrica (massimob)
Elettroni a spasso (guidob)
Bloguerra (guerra)







