un link molto utile:
http://www.bitkom.org/files/documents/Leitfaden_BRZ_EN-Dec_2013.pdf
Protezione tramite separazione elettrica Vs Sistema IT-M
Moderatori:
sebago,
MASSIMO-G,
lillo,
Mike
39 messaggi
• Pagina 2 di 4 • 1, 2, 3, 4
0
voti
ivano ha scritto:la continuita nei centri eleborazione dati di solito e' effettuata con gruppi di continuita'.
la messa terra deve essere efficientissima per evitare che qualsiasi disturbo provochi problemi ai calcolatori.
semmai va realizzata una linea di terra separata che parte dai dispersori.
Daccordissimo, e mi sembra anche la strada da seguire più opportuna.
l'unica cosa è che non avendo mai fatto datacenter di potenze significative mi chiedo:
può valere la pena fare comunque un IT rispetto a un semplice TT o TN per evitare che il guasto su una macchina le mandi tutte in black-out?
prevedere gruppi di macchine complementari su diversi UPS in maniera da non perdere il servizio anche in caso di corto dentro una?
Per il caso specifico ritengo di essere troppo inesperto in merito, preferisco dar fede a quanto detto da
1
voti
0
voti
Grazie a tutti delle risposte.
Per ragioni di carattere gestionale tra i subappataltori, cliente, ecc.... fatto sta che hanno comprato questo trafo d'isolamento.
Ora, per quel che concerne la compatibilità elettromagnetica, anche gli apparecchi elettromedicali sono soggetti ai disturbi condotti. Quindi, a rigor di logica, il problema della compatibilità dovrebbe sussitere anche nelle sale operatorie. Invece con tutte le masse a terra (vedi sistema IT-M), non si hanno problemi.
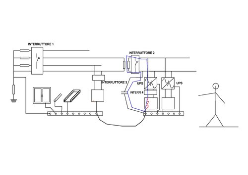
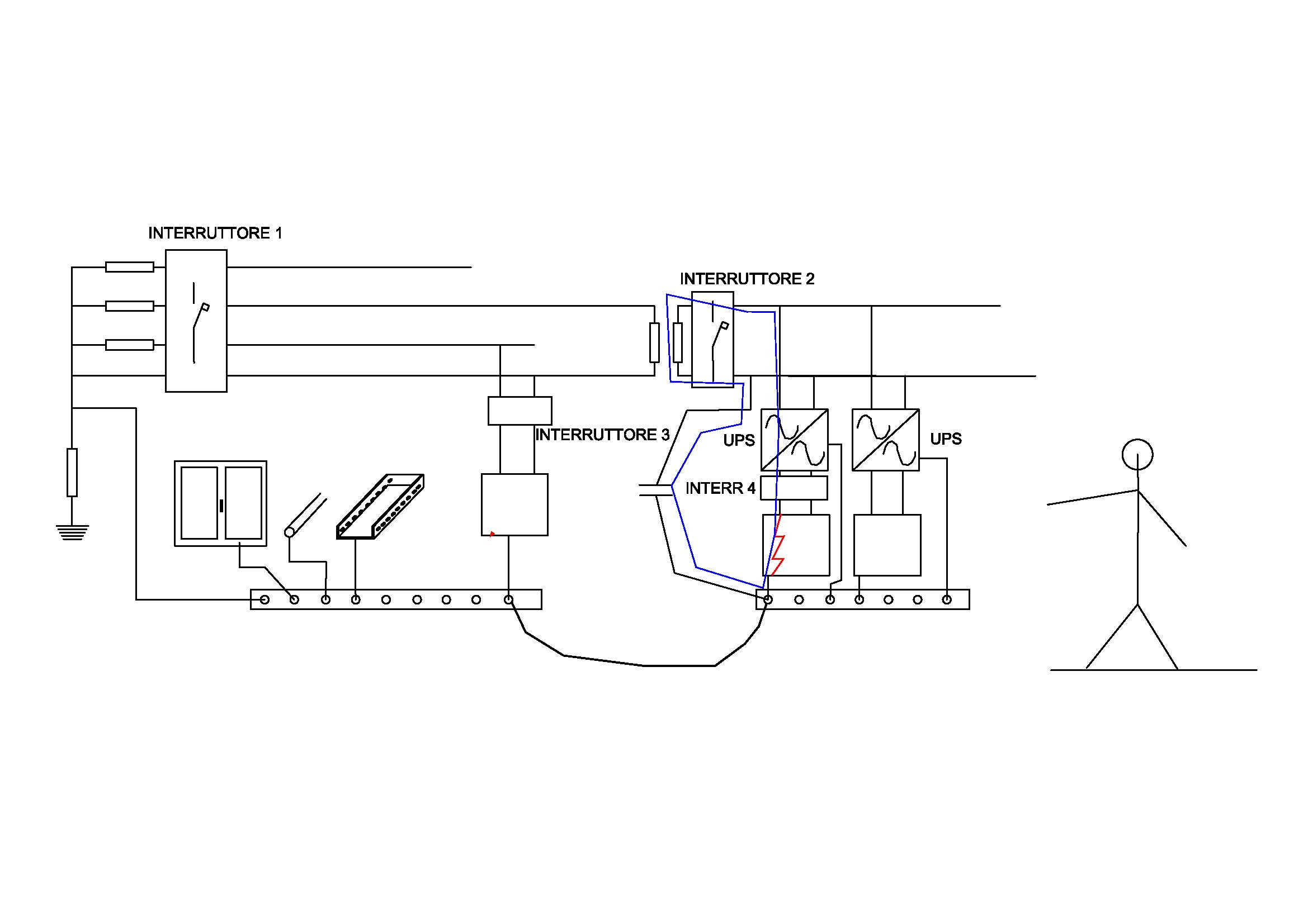
Fondamentalmente io a monte ho un TN-S, come mostrato nelle figure precedenti. L'inserzione di un trafo d'isolamento con la conseguente connessione di tutte le masse a terra (es. sistema IT-M) non credo sia una cosa esagerata.
Convengo con voi che l'UPS svolge benissimo la funzione di continuità del servizio. Infatti normalmente si mette quello e buonanotte.
Tuttavia, col trafo, ho il vantaggio di avere la sala ced isolata quindi più sicura dal punto di vista dei contatti indiretti in caso di 1° guasto. In caso di 2° guasto, amen... ho un cortocircuito quindi in quel caso valgono le regole del TN-S, scatto del magneto termico a monte.
Al contrario se avessi un 1° guasto nel sistema TN-S, l'interruttore subito a monte scatta per non parlare del generale di quadro. In questo caso, ho gli UPS sulle altre macchine che quindi continuano a funzionare, ma sulla macchina dove c'è il guasto? sarebbe isolata....quindi non funzionante.....quindi qualcuno da inculare....
Quindi a mio avviso, interporre un trafo d'isolamento non fa altro che aumentare ancora di più la sicurezza elettrica senza compromettere la funzionalità dell'impianto. E' un po' come sparare alla mosca col cannone ma avendo sto trafo in qualche modo bisogna utilizzarlo.
Grazie.
Per ragioni di carattere gestionale tra i subappataltori, cliente, ecc.... fatto sta che hanno comprato questo trafo d'isolamento.
Ora, per quel che concerne la compatibilità elettromagnetica, anche gli apparecchi elettromedicali sono soggetti ai disturbi condotti. Quindi, a rigor di logica, il problema della compatibilità dovrebbe sussitere anche nelle sale operatorie. Invece con tutte le masse a terra (vedi sistema IT-M), non si hanno problemi.
Fondamentalmente io a monte ho un TN-S, come mostrato nelle figure precedenti. L'inserzione di un trafo d'isolamento con la conseguente connessione di tutte le masse a terra (es. sistema IT-M) non credo sia una cosa esagerata.
Convengo con voi che l'UPS svolge benissimo la funzione di continuità del servizio. Infatti normalmente si mette quello e buonanotte.
Tuttavia, col trafo, ho il vantaggio di avere la sala ced isolata quindi più sicura dal punto di vista dei contatti indiretti in caso di 1° guasto. In caso di 2° guasto, amen... ho un cortocircuito quindi in quel caso valgono le regole del TN-S, scatto del magneto termico a monte.
Al contrario se avessi un 1° guasto nel sistema TN-S, l'interruttore subito a monte scatta per non parlare del generale di quadro. In questo caso, ho gli UPS sulle altre macchine che quindi continuano a funzionare, ma sulla macchina dove c'è il guasto? sarebbe isolata....quindi non funzionante.....quindi qualcuno da inculare....
Quindi a mio avviso, interporre un trafo d'isolamento non fa altro che aumentare ancora di più la sicurezza elettrica senza compromettere la funzionalità dell'impianto. E' un po' come sparare alla mosca col cannone ma avendo sto trafo in qualche modo bisogna utilizzarlo.
Grazie.
0
voti
ma un trasformatore di isolamento unico per un centro di calcolo? spero che sia un centro piccolino
PS: di quanti kVA parliamo?
PS: di quanti kVA parliamo?
Ognuno sta solo sul cuor della terra
trafitto da un raggio di sole:
ed è subito sera
Salvatore Quasimodo
trafitto da un raggio di sole:
ed è subito sera
Salvatore Quasimodo
1
voti
ma di quale continuità stiamo parlando? se salta la corrente col trafo ci fai poco, attento che come ti sta dicendo attilio i computer disperdono verso terra per cui se ne hai molti dovresti impostare l'IMD per valori alti e non avrebbe senso 

1
voti
tieni presente che comunque l'UPS sei costretto a metterlo.
e tieni presente che con l'it-m sei costretto ad avere il segnalatore di isolamento per cui qualcuno dovra' essere
istruito a proposito e questa puo' essere considerata un'incombenza .
se vuoi un consiglio il trasformatore ( da quanti kVA?) mettilo con la scusa di proteggere meglio il tutto da sovratensioni ( chi ti puo' smentire?) e collega un capo del secondario a terra. altrimenti rischi di avere problemi da qualche UPS.
e tieni presente che con l'it-m sei costretto ad avere il segnalatore di isolamento per cui qualcuno dovra' essere
istruito a proposito e questa puo' essere considerata un'incombenza .
se vuoi un consiglio il trasformatore ( da quanti kVA?) mettilo con la scusa di proteggere meglio il tutto da sovratensioni ( chi ti puo' smentire?) e collega un capo del secondario a terra. altrimenti rischi di avere problemi da qualche UPS.
39 messaggi
• Pagina 2 di 4 • 1, 2, 3, 4
Torna a Impianti, sicurezza e quadristica
Chi c’è in linea
Visitano il forum: Nessuno e 74 ospiti

Elettrotecnica e non solo (admin)
Un gatto tra gli elettroni (IsidoroKZ)
Esperienza e simulazioni (g.schgor)
Moleskine di un idraulico (RenzoDF)
Il Blog di ElectroYou (webmaster)
Idee microcontrollate (TardoFreak)
PICcoli grandi PICMicro (Paolino)
Il blog elettrico di carloc (carloc)
DirtEYblooog (dirtydeeds)
Di tutto... un po' (jordan20)
AK47 (lillo)
Esperienze elettroniche (marco438)
Telecomunicazioni musicali (clavicordo)
Automazione ed Elettronica (gustavo)
Direttive per la sicurezza (ErnestoCappelletti)
EYnfo dall'Alaska (mir)
Apriamo il quadro! (attilio)
H7-25 (asdf)
Passione Elettrica (massimob)
Elettroni a spasso (guidob)
Bloguerra (guerra)







