gruppi elettrogeni portatili-messa a terra?
Moderatori:
sebago,
MASSIMO-G,
lillo,
Mike
19 messaggi
• Pagina 2 di 2 • 1, 2
0
voti
Con il consenso e approvazione tecnica di Mike,i sento di dire che sono d'accordo con lui, e riguardo i centro stella del generatore collegato alla massa metallica dello stesso (no doppio isolamento) e di fatto un'escamotage per consentire di applicare all'impianto transitorio un nodo equipotenziale provvisorio ove collegare le masse del circuito che si crea....al fine di inibire eventuali tensioni di contatto pericolose deliberate da eventuali guasti degli utilizzatori, ed ovviare la messa a terra del centro stella del Gen....
0
voti
petroni ha scritto:C'è qualche riferimento legislativo per il minimo isolamento dei cavi elettrici di cantiere?
grazie
La legge italiana (L. 186/68) richiede il rispetto della "regola dell'arte" e dice che gli impianti realizzati secondo le norme CEI si intendono a regola d'arte. Quindi se uno segue la norma tecnica ha la presunzione di avere fatto un impianto a regola d'arte. Nei cantieri edili è richiesto che il cavo sia del tipo idoneo per l'ambiente di installazione atteso, quindi i cavi che vengono usati devono essere del tipo con guaina in neoprene tipo H07RN-F. Il grado di isolamento per i cavi con guaina è 0,6/1kV.
--
Michele Lysander Guetta
--
"Non pensare mai al dolore, al pericolo o ai nemici un momento più lungo del necessario per combatterli." — Ayn Rand
Michele Lysander Guetta
--
"Non pensare mai al dolore, al pericolo o ai nemici un momento più lungo del necessario per combatterli." — Ayn Rand
-

Mike
55,6k 7 10 12 - G.Master EY

- Messaggi: 17005
- Iscritto il: 1 ott 2004, 18:25
- Località: Conegliano (TV)
0
voti
angus ha scritto:posso rilanciare?
Nel caso di un'abitazione normalmente alimentata da fornitore energia, se voglio prevedere (per casi di emergenza) la possibilità di alimentare l'intero impianto con un gruppo elettrogeno, come ci si comporta?
È corretto, stante la temporaneità della situazione, considerare accettabile il fatto che le masse dell'impianto (dove previsto) sono collegate a terra? Mi sembrava di aver letto qualcosa in proposito proprio qui su EP
Riprendo un post di angus, che mi interessa, non ho letto risposte esaustive alla sua domanda, che ripropongo e rilancio.

“vivi il presente“
-

Pierluigi2002
1.048 2 3 6 - Expert

- Messaggi: 1599
- Iscritto il: 23 gen 2008, 23:12
0
voti
Pierluigi2002 ha scritto:Riprendo un post di angus, che mi interessa, non ho letto risposte esaustive alla sua domanda, che ripropongo e rilancio.
Bisogna capire cosa si intende per uso temporaneo e come verrà collegato il GE rispetto al collegamento di rete.
--
Michele Lysander Guetta
--
"Non pensare mai al dolore, al pericolo o ai nemici un momento più lungo del necessario per combatterli." — Ayn Rand
Michele Lysander Guetta
--
"Non pensare mai al dolore, al pericolo o ai nemici un momento più lungo del necessario per combatterli." — Ayn Rand
-

Mike
55,6k 7 10 12 - G.Master EY

- Messaggi: 17005
- Iscritto il: 1 ott 2004, 18:25
- Località: Conegliano (TV)
0
voti
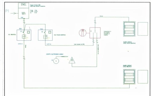
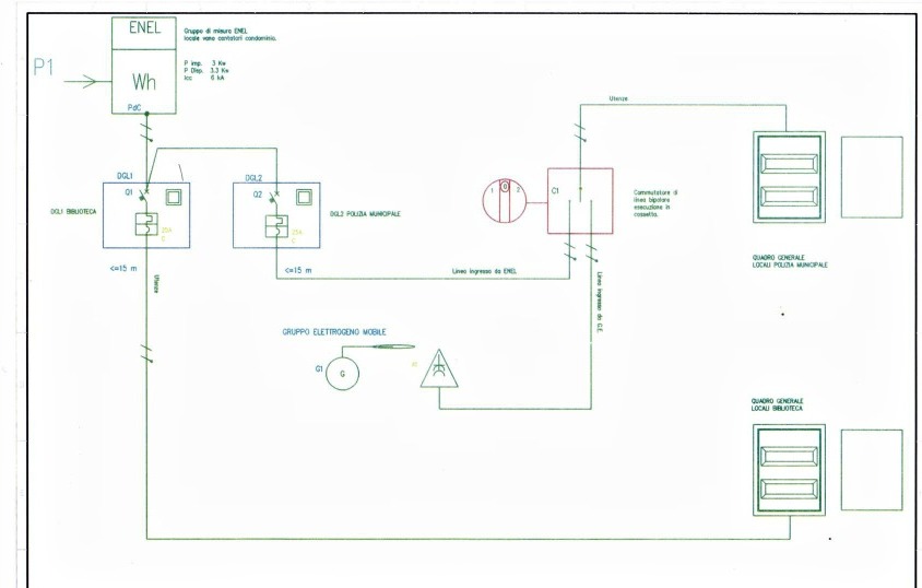
Uso temporaneo si intende, solo in caso di black out, essendo la sede di un COC.
Per quanto riguarda il collegamento del GE al quadretto generale dell'impianto, viene attraverso un quadro manuale di commutazione ENEL/GE. Mi interessava capire il collegamento dell'impianto di terra come gestirlo.
Per quanto riguarda il collegamento del GE al quadretto generale dell'impianto, viene attraverso un quadro manuale di commutazione ENEL/GE. Mi interessava capire il collegamento dell'impianto di terra come gestirlo.
“vivi il presente“
-

Pierluigi2002
1.048 2 3 6 - Expert

- Messaggi: 1599
- Iscritto il: 23 gen 2008, 23:12
0
voti
Colleghi il centro stella del GE alla stessa terra dell'impianto elettrico dell'edificio. L'impianto di terra lo lasci tale e quale e distribuisci in TN-S.
--
Michele Lysander Guetta
--
"Non pensare mai al dolore, al pericolo o ai nemici un momento più lungo del necessario per combatterli." — Ayn Rand
Michele Lysander Guetta
--
"Non pensare mai al dolore, al pericolo o ai nemici un momento più lungo del necessario per combatterli." — Ayn Rand
-

Mike
55,6k 7 10 12 - G.Master EY

- Messaggi: 17005
- Iscritto il: 1 ott 2004, 18:25
- Località: Conegliano (TV)
0
voti
Il GE è monofase, come l'impianto è viene collegato all'utenza tramite spina volante. Quello che mi suggerisci Tu Mike, ricordo di averlo fatto, ma in grandi GE, 3F+N.
“vivi il presente“
-

Pierluigi2002
1.048 2 3 6 - Expert

- Messaggi: 1599
- Iscritto il: 23 gen 2008, 23:12
0
voti
E' lo stesso, al posto del centrostella metti a terra il neutro.
--
Michele Lysander Guetta
--
"Non pensare mai al dolore, al pericolo o ai nemici un momento più lungo del necessario per combatterli." — Ayn Rand
Michele Lysander Guetta
--
"Non pensare mai al dolore, al pericolo o ai nemici un momento più lungo del necessario per combatterli." — Ayn Rand
-

Mike
55,6k 7 10 12 - G.Master EY

- Messaggi: 17005
- Iscritto il: 1 ott 2004, 18:25
- Località: Conegliano (TV)
19 messaggi
• Pagina 2 di 2 • 1, 2
Torna a Impianti, sicurezza e quadristica
Chi c’è in linea
Visitano il forum: Nessuno e 162 ospiti

Elettrotecnica e non solo (admin)
Un gatto tra gli elettroni (IsidoroKZ)
Esperienza e simulazioni (g.schgor)
Moleskine di un idraulico (RenzoDF)
Il Blog di ElectroYou (webmaster)
Idee microcontrollate (TardoFreak)
PICcoli grandi PICMicro (Paolino)
Il blog elettrico di carloc (carloc)
DirtEYblooog (dirtydeeds)
Di tutto... un po' (jordan20)
AK47 (lillo)
Esperienze elettroniche (marco438)
Telecomunicazioni musicali (clavicordo)
Automazione ed Elettronica (gustavo)
Direttive per la sicurezza (ErnestoCappelletti)
EYnfo dall'Alaska (mir)
Apriamo il quadro! (attilio)
H7-25 (asdf)
Passione Elettrica (massimob)
Elettroni a spasso (guidob)
Bloguerra (guerra)