Cos'è ElectroYou | Login Iscriviti

ElectroYou - la comunità dei professionisti del mondo elettrico

riscaldare un blocco di alluminio

Tecniche per la costruzione e la riparazione di apparecchiature elettriche e non. Ricerca guasti. Adattamenti e riutilizzazioni
0
voti

[21] Re: riscaldare un blocco di alluminio

Messaggioda Foto Utentesetteali » 13 ott 2017, 20:09

:ok: Foto Utenteedgar, stavo appunto leggendo le vostre risposte e volevo correggere @tonnoto, ma sei stato velocissimo :-)

Bene Foto Utentetonnoto, se sei così gentile a ricalcolare con i nuovi tempi, ti ringrazio.

Aggiungo che il tempo di 15" probabilmente potrà arrivare anche a 30", se consideriamo la partenza da freddo, perché poi nella lavorazione il blocco è già ad una temperatura vicina, ( forse 100° ? )

Considerate che sono dati che andrebbero poi verificati, solo se le potenze in gioco rimanessero sotto i 2 kW, al di sopra, io non ho voglia di sperimentare e lo proporrei a persone più idonee.

Si potrebbe parlare di farmi costruire un oscillatore Royer di circa 2kW e vedere come funziona, sempre che sia una costruzione da poter eseguire con le mie possibilità ?
O_/

P.S.
@tonnoto, hai risposto mentre scrivevo, e 26 kW effettivamente sono tanti.
Alex
https://www.facebook.com/Elettronicaeelettrotecnica

<< vedi di pigliare arditamente in mano, il dizionario che ti suona in bocca,
se non altro è schietto e paesano.
(Giuseppe Giusti) <<
Avatar utente
Foto Utentesetteali
11,9k 5 5 9
Master
Master
 
Messaggi: 5921
Iscritto il: 15 dic 2013, 21:09

0
voti

[22] Re: riscaldare un blocco di alluminio

Messaggioda Foto Utenteadert » 17 ott 2017, 2:37

P=4kg peso blocco al
Cs=900 J/kg/°K calore specifico al
dT=120-100=20°C delta temperatura da ridare al pezzo a ogni ciclo
t=15 s tempo di riscaldo
E=P*Cs*dT=4*900*20=72.000 J
P=E/t=72000/15=4800 J/s=4800 w--->5000 w
Se aumenti il tempo di riscaldo, scende la potenza necessaria, per 30 secondi
scendi a 2400 W.
Ovviamenti devi portare in temperatura la prima volta in tempi maggiori.
Con un royer da 5000 w per andare da ambiente 20° a 120 °C ci metti:
dT=120-20=100°C
E=P*Cs*dt=4*900*100=360.000 J
t=E/P=360.000/5000=72 s -->1,2 minuti.
Per me è fattibile secondo tale logica, vedi se applicabile al tuo ciclo operativo.
Ciao Ader
Scopo principale della nostra vita , è dare prosieguo alla vita , come tutti gli esseri viventi fanno.
Avatar utente
Foto Utenteadert
295 2 8
Frequentatore
Frequentatore
 
Messaggi: 255
Iscritto il: 19 apr 2014, 16:57

0
voti

[23] Re: riscaldare un blocco di alluminio

Messaggioda Foto Utentesetteali » 17 ott 2017, 8:47

adert ha scritto:...........
Con un royer da 5000 w per andare da ambiente 20° a 120 °C ci metti:
dT=120-20=100°C
E=P*Cs*dt=4*900*100=360.000 J
t=E/P=360.000/5000=72 s -->1,2 minuti.
Per me è fattibile secondo tale logica, vedi se applicabile al tuo ciclo operativo.
Ciao Ader


Ciao, siamo scesi molto come potenza e quindi credo che si possa ragionarci sopra e vedere i tempi di lavorazione quali possano essere, rimane ora vedere come poter realizzare un royer di questa potenza od anche meno, questo solo per fare delle prove di riscaldamento e credo che delle prove si possano fare anche con potenze più basse.
Allora rimarrebbe da capire come realizzare ( se possibile) un royer di questa potenza e vedere le difficoltà che ci sono eventualmente di trovare qualcosa in commercio da utilizzare.
Te sai indicarmi qualcosa o hai uno schema ?
O_/
Alex
https://www.facebook.com/Elettronicaeelettrotecnica

<< vedi di pigliare arditamente in mano, il dizionario che ti suona in bocca,
se non altro è schietto e paesano.
(Giuseppe Giusti) <<
Avatar utente
Foto Utentesetteali
11,9k 5 5 9
Master
Master
 
Messaggi: 5921
Iscritto il: 15 dic 2013, 21:09

0
voti

[24] Re: riscaldare un blocco di alluminio

Messaggioda Foto UtenteEcoTan » 17 ott 2017, 9:12

Non credo però che il rendimento (calore utile/energia elettrica) di un Royer possa essere vicino al 100%, assolutamente no.
Avatar utente
Foto UtenteEcoTan
7.720 4 12 13
Expert EY
Expert EY
 
Messaggi: 5426
Iscritto il: 29 gen 2014, 8:54

0
voti

[25] Re: riscaldare un blocco di alluminio

Messaggioda Foto Utentesetteali » 17 ott 2017, 9:40

Foto UtenteEcoTan, certo il 100% sarà difficile ottenerlo, secondo te dove si potrebbe arrivare?

Oggi vengono scaldati ( questi blocchi ) con delle resistenze , che sono da 200 a 400 W a seconda dei tipi e ne viene scaldati (con termostato) da 8 od anche 16 continuamente.
E' probabile che si possa fare anche una lavorazione su due punti e cioè scaldare un blocco e lavorare su un altro blocco già scaldato ( la lavorazione richieda al massimo 30" - 40" ).
O_/
Alex
https://www.facebook.com/Elettronicaeelettrotecnica

<< vedi di pigliare arditamente in mano, il dizionario che ti suona in bocca,
se non altro è schietto e paesano.
(Giuseppe Giusti) <<
Avatar utente
Foto Utentesetteali
11,9k 5 5 9
Master
Master
 
Messaggi: 5921
Iscritto il: 15 dic 2013, 21:09

1
voti

[26] Re: riscaldare un blocco di alluminio

Messaggioda Foto Utenteadert » 18 ott 2017, 0:00

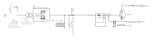
Su ebay digita ZVS 1000W, trovi gli ZVS, zero voltage switching a bassa tensione 12-24-36-48V 20/50A da 1000w a induzione per poche decine di euro.
Prendilo con la bobina e il ventilatore per fare dei test.
Ti devi organizzare con un buon alimentatore a bassa tensione, costituioto da trasformatore 230V/24/36V/48V ac 1000 VA, 3 ponti di greatz da 35A in parallelo su dissipatore, un banco di condensatori da 4700 uF 100V , un interruttore di potenza lato DC, quando inserisci il ZVS deve gia' esserci tensione DC dei condensatori, altrimenti rischi di bruciare 1 mosfet, il + veloce.
Ovviamente la bobina la dovrai costruire per la tua applicazione.
Usa il filo di Litz per costruire la bobina,riduci l'effetto pelle, la bobina si scalda meno, lo trovi sempre su Ebay, 2000 trefoli isolati da 0,1 mm (per range frequenza 50-100khz) ha una sezione di 15 mm^2 per una portata di 75A Ampere costa 10 euro al metro.

Ciao
Ultima modifica di Foto Utenteadert il 18 ott 2017, 0:52, modificato 1 volta in totale.
Scopo principale della nostra vita , è dare prosieguo alla vita , come tutti gli esseri viventi fanno.
Avatar utente
Foto Utenteadert
295 2 8
Frequentatore
Frequentatore
 
Messaggi: 255
Iscritto il: 19 apr 2014, 16:57

0
voti

[27] Re: riscaldare un blocco di alluminio

Messaggioda Foto Utentesetteali » 18 ott 2017, 0:34

:ok: Foto Utenteadert,
ho visto su e-bay il Royer a circa 40€ con le spese.
Il filo l'ho trovato , ma a 29€ più 19€ circa di spese, hai il link per trovarlo a 10 € ?
Il trasformatore a 24 V 4 kW dovrei recuperarlo senza problemi.
Anche i ponti da 35 A li ho.
I condensatori elettrolitici da 4700, li avrei a 63V oppure 80V ( perché hai detto 250 V ? ) e ne avrei molti.
OK per inserire lo ZVS con tensione DC presente.
Ti ringrazio per le informazioni
O_/
Alex
https://www.facebook.com/Elettronicaeelettrotecnica

<< vedi di pigliare arditamente in mano, il dizionario che ti suona in bocca,
se non altro è schietto e paesano.
(Giuseppe Giusti) <<
Avatar utente
Foto Utentesetteali
11,9k 5 5 9
Master
Master
 
Messaggi: 5921
Iscritto il: 15 dic 2013, 21:09

0
voti

[28] Re: riscaldare un blocco di alluminio

Messaggioda Foto Utenteadert » 18 ott 2017, 0:58

ok 80v va bene peri condensatori, non devi superare i 50 Vac in uscita al trafo.
Puoi anche mettere un dimer di potenza in entrata al trafo per limitare la tensione di uscita.
Fido cad allegto è per trafo trifase , va bene anche monofase.
Il fornitore è italtras https://www.italtras.us/filo-litz/81-fi ... 2000x010mm.
Usa trafo con + prese intermedie 24/36/48.
Ciao
posting.php?mode=reply&f=2&t=71125#
Scopo principale della nostra vita , è dare prosieguo alla vita , come tutti gli esseri viventi fanno.
Avatar utente
Foto Utenteadert
295 2 8
Frequentatore
Frequentatore
 
Messaggi: 255
Iscritto il: 19 apr 2014, 16:57

2
voti

[29] Re: riscaldare un blocco di alluminio

Messaggioda Foto Utenteesisnc » 18 ott 2017, 8:52

Non vorrei gelare le vostre iniziative, ma di riscaldamento ad induzione ho una certa esperienza e vi posso dire che riscaldare con questo sistema dei materiali amagnetici (rame e alluminio per esempio) è tecnicamente molto difficile.
La ragione è che i materiali amagnetici, sottoposti ad un campo d'induzione magnetica, si scaldano SOLO per correnti parassite indotte, mentre per i materiali magnetici (ferrosi) il contributo al loro riscaldamento è principalmente dovuto alle perdite per ISTERESI MAGNETICA che gli amagnetici non hanno.
Avete mai visto i piani ad induzione delle cucine funzionare con pentolame in alluminio? MAI !!!!!
Anzi i costruttori raccomandano SOLO pentole con fondo in acciaio.
Il sistema magnetico inducente (bobine accoppiate magneticamente al pezzo di alluminio da scaldare) funziona praticamente come un trasformatore in alta frequenza (decine di kHz) con secondario in cortocircuito (correnti parassite nel pezzo di alluminio da scaldare) con corrente primaria molto elevata perché la resistenza equivalente secondaria riflessa al primario è molto bassa.
Quindi per avere effetti di riscaldamento utili occorrono potenze esorbitanti, con elettroniche di potenza da decine e decine di kW.
Avatar utente
Foto Utenteesisnc
4.405 2 9 11
Master EY
Master EY
 
Messaggi: 532
Iscritto il: 24 feb 2009, 12:12

0
voti

[30] Re: riscaldare un blocco di alluminio

Messaggioda Foto Utentesetteali » 18 ott 2017, 9:11

Ciao Foto Utenteesisnc,

In effetti anche a me erano venuti in mente i piani cottura ad induzione che vengono usati nelle cucine, ma pensavo (erroneamente) che mettendo il blocco in alluminio dentro la bobina avesse il risultato voluto.
In effetti, facendo il confronto ad una bobina di un qualsiasi oscillatore a RF , mettendo un nucleo all'interno , la variazione di frequenza è maggiore più il materiale è ferroso. :cry:

Quindi te dici che con 1kW o 2 kW non si ottengono risultati validi?

Ti ringrazio, sei stato utile :ok:

:ok:

P.S.
@esisnc , quando nella mia zona.......fermati!
Alex
https://www.facebook.com/Elettronicaeelettrotecnica

<< vedi di pigliare arditamente in mano, il dizionario che ti suona in bocca,
se non altro è schietto e paesano.
(Giuseppe Giusti) <<
Avatar utente
Foto Utentesetteali
11,9k 5 5 9
Master
Master
 
Messaggi: 5921
Iscritto il: 15 dic 2013, 21:09

PrecedenteProssimo

Torna a Costruzione, riparazione, riutilizzo

Chi c’è in linea

Visitano il forum: Nessuno e 40 ospiti