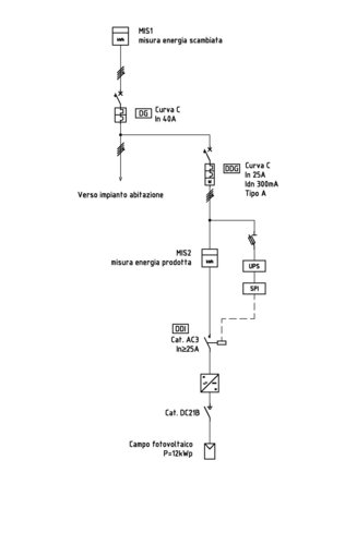
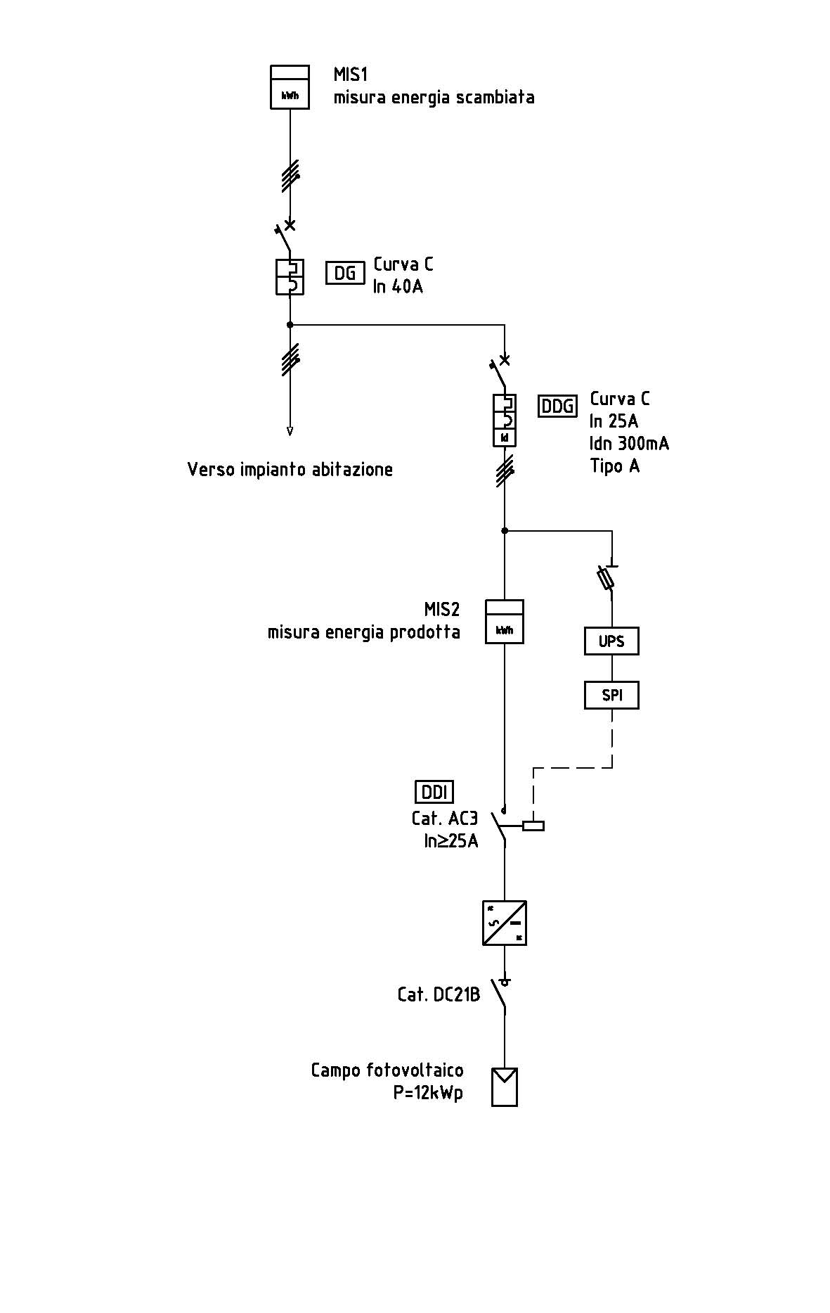
inoltrerò a breve la mia prima domanda di connessione ad ENEL.
Ho messo giù un unifilare, qualcuno di voi ha voglia di buttare un occhio per vedere se può essere valido?
Forse sono ripetitivo, ma il portale produttori mi incute timore
Moderatori:
sebago,
mario_maggi




Torna a Energia e qualità dell'energia
Visitano il forum: Nessuno e 6 ospiti