Buongiorno.
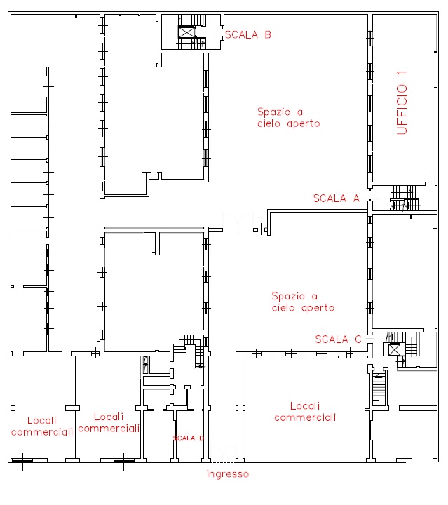
Mi è stato chiesto di fare una valutazione per il rischio fulminazione dalla società che occupa l’ufficio 1 (scala A).
Per tenere conto delle dimensioni da inserire nei software devo considerare l’intero complesso (quindi anche le scale B, C, D, e i locali commerciali) o solo le dimensioni e altezza della parte relativa alla scala A?
Grazie
Valutazione rischio fulminazione
Moderatori:
sebago,
MASSIMO-G,
lillo,
Mike
4 messaggi
• Pagina 1 di 1
0
voti
Tutto l'edificio, se non ci sono compartimentazioni almeno REI 120 e altre condizioni sugli impianti.
Però nel tuo caso mi sembra che la parte destra sia completamente separata da quella di sinistra, o sbaglio?
C'è autorimessa in comune all'interrato?
Però nel tuo caso mi sembra che la parte destra sia completamente separata da quella di sinistra, o sbaglio?
C'è autorimessa in comune all'interrato?
0
voti
Però nel tuo caso mi sembra che la parte destra sia completamente separata da quella di sinistra, o sbaglio?
No. L'ingresso è un portone. Quindi al primo piano è tutto collegato
C'è autorimessa in comune all'interrato?
No. non c'è autorimessa. Ci sono solo cantine ma non sono in comune tra le scale.
0
voti
Tieni conto dell'intera struttura, poco importa nel tuo esempio poiché l'edificio ti risulterà sicuramente autoprotetto, se c'è un amministratore potresti farlo partecipe così da poter informare anche gli altri occupanti che stai facendo questa valutazione
non ci sono problemi, ma solo soluzioni
4 messaggi
• Pagina 1 di 1
Torna a Impianti, sicurezza e quadristica
Chi c’è in linea
Visitano il forum: Nessuno e 78 ospiti

Elettrotecnica e non solo (admin)
Un gatto tra gli elettroni (IsidoroKZ)
Esperienza e simulazioni (g.schgor)
Moleskine di un idraulico (RenzoDF)
Il Blog di ElectroYou (webmaster)
Idee microcontrollate (TardoFreak)
PICcoli grandi PICMicro (Paolino)
Il blog elettrico di carloc (carloc)
DirtEYblooog (dirtydeeds)
Di tutto... un po' (jordan20)
AK47 (lillo)
Esperienze elettroniche (marco438)
Telecomunicazioni musicali (clavicordo)
Automazione ed Elettronica (gustavo)
Direttive per la sicurezza (ErnestoCappelletti)
EYnfo dall'Alaska (mir)
Apriamo il quadro! (attilio)
H7-25 (asdf)
Passione Elettrica (massimob)
Elettroni a spasso (guidob)
Bloguerra (guerra)




