Ciao ho un problema sulla scheda dello scaldabagno. il riscaldamento (caloriferi) rimane sempre acceso.
Ho scollegato il termostato e sono andato a vedere i terminali della scheda elettronica dello scaldabagno. Nella foto indicati in rosso sono i contatti del riscaldamento.
Misurando con i puntali tra la terra e ingresso 1 del contatto riscaldamento caloriferi ho 230 VAC. Idem tra terra e contatto 2 del riscaldamento caloriferi. Quindi è come se questo contatto fosse sempre chiuso, ma all'interno della scheda.
Se inverto l'alimentazione della caldaia (neutro nella fase e viceversa), mi trovo su entrambi i contatti il potenziale del neutro.
La scheda è scheda caldaia VAILLANT (eco block pro) ( cod.0020045430 cod.0020059202 cod.0020092371
Grazie in anticipo a chi mi aiuta.
Troubleshooting scheda scaldabagno
11 messaggi
• Pagina 1 di 2 • 1, 2
2
voti
In pratica la caldaia tiene attiva la pompa dei caloriferi e periodicamente accende la fiamma per tenere calda l'acqua del circuito, giusto?
-

marioursino
5.687 3 9 13 - G.Master EY

- Messaggi: 1598
- Iscritto il: 5 dic 2009, 4:32
0
voti
marioursino ha scritto:In pratica la caldaia tiene attiva la pompa dei caloriferi e periodicamente accende la fiamma per tenere calda l'acqua del circuito, giusto?
Esatto. pompa acqua calorifieri e bruciatore sempre acceso (come se il contatto del termostato remoto fosse chiuso). Quando comando l'acqua sanitaria il bruciatore aumenta intensità.
-

stardust79
85 1 2 7 - Stabilizzato

- Messaggi: 330
- Iscritto il: 24 dic 2013, 18:13
1
voti
Sembra un problema del termostato. Apri e chiudi manualmente il contatto del termostato.
-

marioursino
5.687 3 9 13 - G.Master EY

- Messaggi: 1598
- Iscritto il: 5 dic 2009, 4:32
0
voti
marioursino ha scritto:Sembra un problema del termostato. Apri e chiudi manualmente il contatto del termostato.
leggi bene il primo messaggio
-

stardust79
85 1 2 7 - Stabilizzato

- Messaggi: 330
- Iscritto il: 24 dic 2013, 18:13
1
voti
Ho letto, ma non saprei come interpretare esattamente delle letture in tensione rispetto a terra. Quello che vedi dipende da come è fatto il circuito. Per quello potresti collegare un interruttore simulando manualmente il termostato.
-

marioursino
5.687 3 9 13 - G.Master EY

- Messaggi: 1598
- Iscritto il: 5 dic 2009, 4:32
0
voti
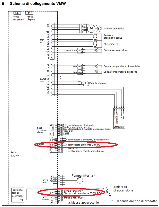
elfo ha scritto:Lo schema qui sotto e' preso dal manuale di installazione della ecoBLOCk pro (pag. 40)
Tu che versione hai (24 VDC o 230 VAC)?
230 vac . alimentazione e contatto scaldabagno sono a 230 vac. ma credo che ci voglia lo schema interno (che non trovo...)
-

stardust79
85 1 2 7 - Stabilizzato

- Messaggi: 330
- Iscritto il: 24 dic 2013, 18:13
0
voti
stefanopc ha scritto:Lo schema di Elfo sembra diverso da quello in foto forse ci sono diverse versioni?
Ciao
probabile di si..
-

stardust79
85 1 2 7 - Stabilizzato

- Messaggi: 330
- Iscritto il: 24 dic 2013, 18:13
11 messaggi
• Pagina 1 di 2 • 1, 2
Torna a Costruzione, riparazione, riutilizzo
Chi c’è in linea
Visitano il forum: Nessuno e 11 ospiti

Elettrotecnica e non solo (admin)
Un gatto tra gli elettroni (IsidoroKZ)
Esperienza e simulazioni (g.schgor)
Moleskine di un idraulico (RenzoDF)
Il Blog di ElectroYou (webmaster)
Idee microcontrollate (TardoFreak)
PICcoli grandi PICMicro (Paolino)
Il blog elettrico di carloc (carloc)
DirtEYblooog (dirtydeeds)
Di tutto... un po' (jordan20)
AK47 (lillo)
Esperienze elettroniche (marco438)
Telecomunicazioni musicali (clavicordo)
Automazione ed Elettronica (gustavo)
Direttive per la sicurezza (ErnestoCappelletti)
EYnfo dall'Alaska (mir)
Apriamo il quadro! (attilio)
H7-25 (asdf)
Passione Elettrica (massimob)
Elettroni a spasso (guidob)
Bloguerra (guerra)

