Scusate una domanda banale ma voi quando date lo schema elettrico dei collegamenti del quadro al ns. installatore come lo indicate? io quando faccio le distinte del quadro cerco di essere più preciso possibile... x questo indico morsetti ecc..
Utilizzo il simbolo da Voi raffigurato solo negli unifilari? è corretto...
Vi ringrazio se mi fornite del supporto....
Simbolo Relè differenziale
Moderatori:
sebago,
MASSIMO-G,
lillo,
Mike
18 messaggi
• Pagina 2 di 2 • 1, 2
0
voti
per quanto mi riguarda gli schemi li leggo e non li realizzo ...
...
sono del tipo unifilare e relativamente agli interruttori differenziali trovo indicati con il simbolo già visto inserito e sempre in cascata alla protezione termica e magnetica, con la sua relativa indicazione e numerazione dei conduttori interessati.
quando dice bene le indicazioni sui conduttori ed il dispositivo offrono delle buone informazioni per individuare i componenti a valle dello stesso e a campo.
quando dice bene le indicazioni sui conduttori ed il dispositivo offrono delle buone informazioni per individuare i componenti a valle dello stesso e a campo.
1
voti
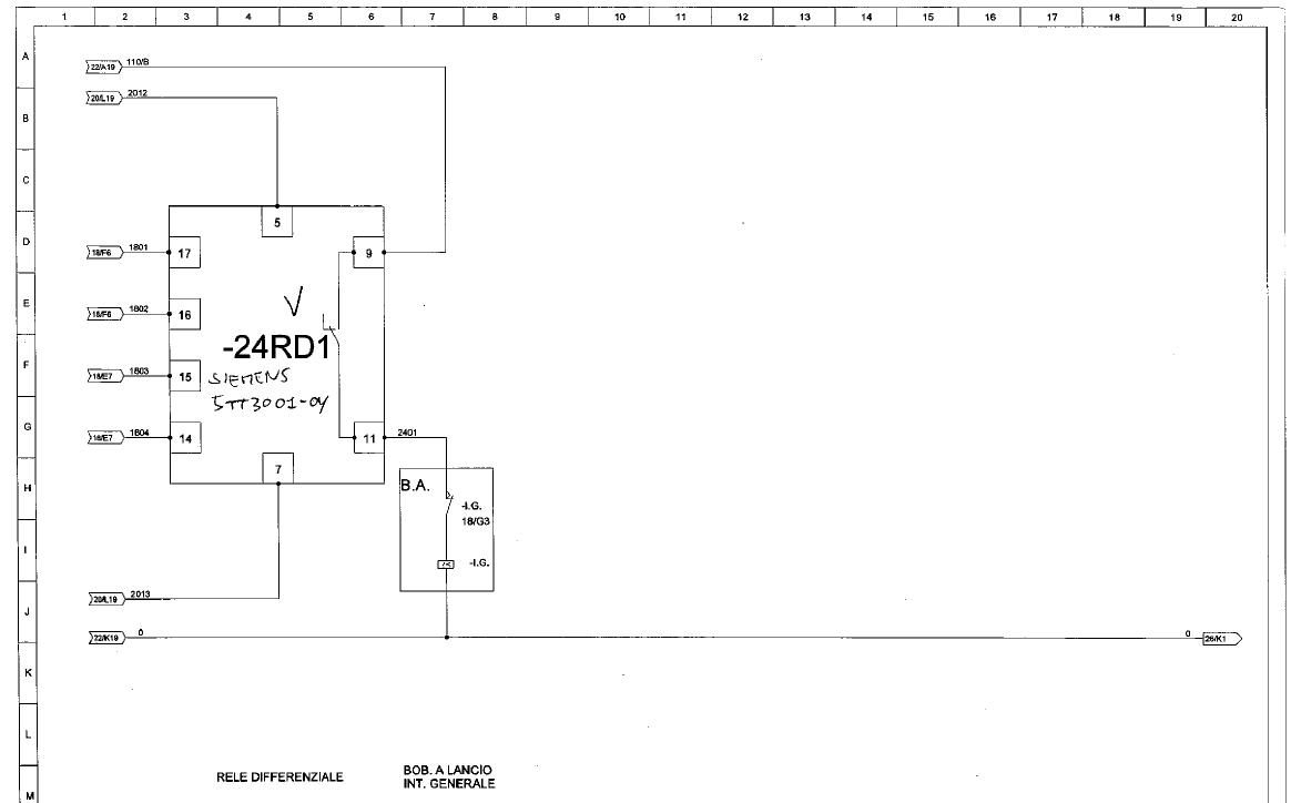
Si usa il simbolo inserito nel post nr. 2.
Uno per ogni filo , connessi tra loro da una barra segmentata a collegare i contatti mobili, per evidenziare la contemporaneità di manovra dei contatti.
Uno per ogni filo , connessi tra loro da una barra segmentata a collegare i contatti mobili, per evidenziare la contemporaneità di manovra dei contatti.
-

Ivan_Iamoni
5.336 6 10 12 - Utente disattivato per decisione dell'amministrazione proprietaria del sito
- Messaggi: 2330
- Iscritto il: 22 ott 2006, 18:45
0
voti
Si grazie ragazzi....e simile a quello che avevo pensato ma non ero sicuro l'ho copiato dall'istruzione tecnica di montaggio del fornitore del Relè differenziale posso chiederVi che software di calcolo e stesura elaborati grafici utilizzate?
0
voti
Ving85 ha scritto:possibile che nessuno prepara schemi multifilari per i quadri??
schemi multifilari nei quadri? mi ritengo fortunato quando riesco ad avere uno schema elettrico unifilare in cui le indicazioni correttamente mi riportano nelle posizioni e pagine che interessano questo o quel dispositivo che sto cercando, in genere il multifilare si riferisce al manuale del dispositivo,o magari a piccole macchine (esempio etichettatrici di fondo linea).
1
voti
Attenzione alle definizioni, uniflare e multifilare, nelle parole lette prima ho letto (magari mi sbaglio) delle incertezze sull'argomento.
Multifilare non significa che si rappresenti tutto, scendendo anche nel più piccolo dettaglio del componente.
Anzi scendere nei dettagli rende lo schema meno intuitivo, difficile da ampliare o modificare e ti porta ad usare simbologie non unificate e non riconosciute.
Multifilare , rappresenta lo schema con la totalità dei conduttori, pur sempre utilizzando la simbologia unificata , come quella dell'esempio al post 2.
Unifilare , raggruppa i conduttori in uno solo e ne specifica numero e natura con una serie di segmenti diagonali alla perpendicolare , la simbologia dei componenti è topograficamente praticamente quasi la stessa del multifilare.
Usatissimi per esempio schemi di distribuzione, In unifilare è praticamente quasi impossibile raffigurare schemi complessi di comando e controllo automatici.
Multifilare non significa che si rappresenti tutto, scendendo anche nel più piccolo dettaglio del componente.
Anzi scendere nei dettagli rende lo schema meno intuitivo, difficile da ampliare o modificare e ti porta ad usare simbologie non unificate e non riconosciute.
Multifilare , rappresenta lo schema con la totalità dei conduttori, pur sempre utilizzando la simbologia unificata , come quella dell'esempio al post 2.
Unifilare , raggruppa i conduttori in uno solo e ne specifica numero e natura con una serie di segmenti diagonali alla perpendicolare , la simbologia dei componenti è topograficamente praticamente quasi la stessa del multifilare.
Usatissimi per esempio schemi di distribuzione, In unifilare è praticamente quasi impossibile raffigurare schemi complessi di comando e controllo automatici.
-

Ivan_Iamoni
5.336 6 10 12 - Utente disattivato per decisione dell'amministrazione proprietaria del sito
- Messaggi: 2330
- Iscritto il: 22 ott 2006, 18:45
18 messaggi
• Pagina 2 di 2 • 1, 2
Torna a Impianti, sicurezza e quadristica
Chi c’è in linea
Visitano il forum: Nessuno e 178 ospiti

Elettrotecnica e non solo (admin)
Un gatto tra gli elettroni (IsidoroKZ)
Esperienza e simulazioni (g.schgor)
Moleskine di un idraulico (RenzoDF)
Il Blog di ElectroYou (webmaster)
Idee microcontrollate (TardoFreak)
PICcoli grandi PICMicro (Paolino)
Il blog elettrico di carloc (carloc)
DirtEYblooog (dirtydeeds)
Di tutto... un po' (jordan20)
AK47 (lillo)
Esperienze elettroniche (marco438)
Telecomunicazioni musicali (clavicordo)
Automazione ed Elettronica (gustavo)
Direttive per la sicurezza (ErnestoCappelletti)
EYnfo dall'Alaska (mir)
Apriamo il quadro! (attilio)
H7-25 (asdf)
Passione Elettrica (massimob)
Elettroni a spasso (guidob)
Bloguerra (guerra)



