Salve,
ho iniziato uno schizzo per testare l'autoritenuta sul relè, solo che non so come continuare per completarlo
Ho visionato diversi schemi ma non trovo la soluzione, c'è qualcuno che potrebbe aiutare?
Autoritenuta su relè
Moderatori:
carloc,
g.schgor,
BrunoValente,
IsidoroKZ
6 messaggi
• Pagina 1 di 1
1
voti
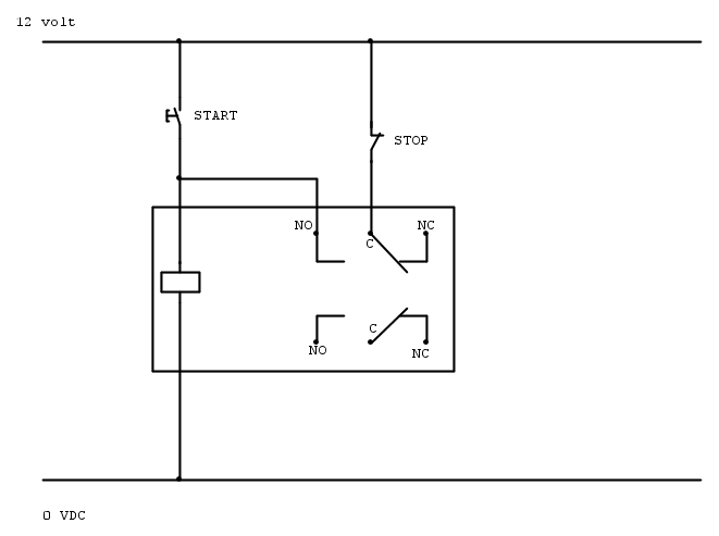
e' il mio primo post ,spero si capisca.
-

francesco2011
157 4 - Messaggi: 42
- Iscritto il: 4 gen 2018, 12:32
- Località: macerata
0
voti
Sì, francesco2011, si capisce ed è esatto. Mi permetto solo di riscriverlo in un altro modo.
Dove START è un pulsante normalmente aperto, STOP è un pulsante normalmente chiuso, NO è il contatto normalmente aperto con il relè a riposo, NC è il contatto normalmente chiuso con il relè a riposo e C è il contatto commutato a seconda che il relè sia a riposo o no.
Ciao,
P.
Dove START è un pulsante normalmente aperto, STOP è un pulsante normalmente chiuso, NO è il contatto normalmente aperto con il relè a riposo, NC è il contatto normalmente chiuso con il relè a riposo e C è il contatto commutato a seconda che il relè sia a riposo o no.
Ciao,
P.
0
voti
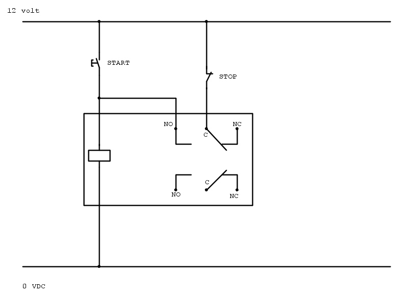
illuminor ha scritto:l'autoritenuta sul relè, ...c'è qualcuno che potrebbe aiutare?
ci provo..
L'autoritenuta si utilizza per fa si che al comando di alimentazione (pulsante di start PS =NO) di un relè, la bobina del relè stesso ( K ) si ecciti ed al rilascio del pulsante di comando (PS) il relè mantenga lo stato, mantendo così la condizione di scambio dei contatti (no-nc) ad esso associati.
Per realizzare l'autoritenuta non si fa altro che collegare in derivazione (parallelo) al contatto del pulsante di start (PS) un contatto NO (K') del relè stesso.
Cosi facendo quando il relè si porta il condizioni di eccitazione, con il suo stesso contatto (K') bypassa il pulsante di start (PS) mantendo cosi lo stato raggiunto.
Per riportare poi il relè nelle condizioni di riposo, si prevede in serie al pulsante di start (PS) un pulsante di arresto (PA=NC) che altro non è che un contatto normalmente chiuso, quando questi viene premuto, si interrompe la linea di alimentazione (del +12V) verso il relè che si disalimenta e si riporta nelle condizioni di riposo, contatti compresi.
Schematizzando, vien fuori ...
I circuiti sono controcorrente. Seguono sempre la massa
-Per rispondere utilizza il tasto [RISPONDI] e non il tasto [CITA], grazie.-
-Per rispondere utilizza il tasto [RISPONDI] e non il tasto [CITA], grazie.-
0
voti
Proverei a leggere l'articolo di
attilio sull'autoritenuta. Spiegato in dettaglio, con circuiti che si vedono dal vero...
Per usare proficuamente un simulatore, bisogna sapere molta più elettronica di lui
Plug it in - it works better!
Il 555 sta all'elettronica come Arduino all'informatica! (entrambi loro malgrado)
Se volete risposte rispondete a tutte le mie domande
Plug it in - it works better!
Il 555 sta all'elettronica come Arduino all'informatica! (entrambi loro malgrado)
Se volete risposte rispondete a tutte le mie domande
6 messaggi
• Pagina 1 di 1
Chi c’è in linea
Visitano il forum: Nessuno e 42 ospiti

Elettrotecnica e non solo (admin)
Un gatto tra gli elettroni (IsidoroKZ)
Esperienza e simulazioni (g.schgor)
Moleskine di un idraulico (RenzoDF)
Il Blog di ElectroYou (webmaster)
Idee microcontrollate (TardoFreak)
PICcoli grandi PICMicro (Paolino)
Il blog elettrico di carloc (carloc)
DirtEYblooog (dirtydeeds)
Di tutto... un po' (jordan20)
AK47 (lillo)
Esperienze elettroniche (marco438)
Telecomunicazioni musicali (clavicordo)
Automazione ed Elettronica (gustavo)
Direttive per la sicurezza (ErnestoCappelletti)
EYnfo dall'Alaska (mir)
Apriamo il quadro! (attilio)
H7-25 (asdf)
Passione Elettrica (massimob)
Elettroni a spasso (guidob)
Bloguerra (guerra)










