Salve, mi hanno chiesto lumi per alimentare le pompe antincendio di un condominio.
L'elettricista mi dice che ha due pompe da alimentare da 2kW/cad.
Che io sappia le pompe antincendio devono avere una doppia alimentazione e infatti di solito oltre quella elettrica c'è la motopompa, nel caso fossero solo pompe elettriche la doppia alimentazione deve essere garantita da due linee separate alimentati da contatori differenti ?
grazie
Pompe antincendio in un condominio
Moderatori:
sebago,
MASSIMO-G,
lillo,
Mike
21 messaggi
• Pagina 1 di 3 • 1, 2, 3
0
voti
In alcuni casi può bastare alimentazione singola con linea preferenziale alimentata a monte dell'interruttore generale e conduttura resistente al fuoco.
Te lo deve dire il progettista antincendio.
Da capire perché ci sono due pompe elettriche e non solo una (oltre alla pompa di compensazione).
Te lo deve dire il progettista antincendio.
Da capire perché ci sono due pompe elettriche e non solo una (oltre alla pompa di compensazione).
0
voti
Devono indicarti la pompa antincendio che deve essere alimentata da linea preferenziale e quella di servizio che va alimentata in maniera ordinaria.
--
Michele Lysander Guetta
--
"Non pensare mai al dolore, al pericolo o ai nemici un momento più lungo del necessario per combatterli." — Ayn Rand
Michele Lysander Guetta
--
"Non pensare mai al dolore, al pericolo o ai nemici un momento più lungo del necessario per combatterli." — Ayn Rand
-

Mike
55,6k 7 10 12 - G.Master EY

- Messaggi: 17002
- Iscritto il: 1 ott 2004, 18:25
- Località: Conegliano (TV)
0
voti
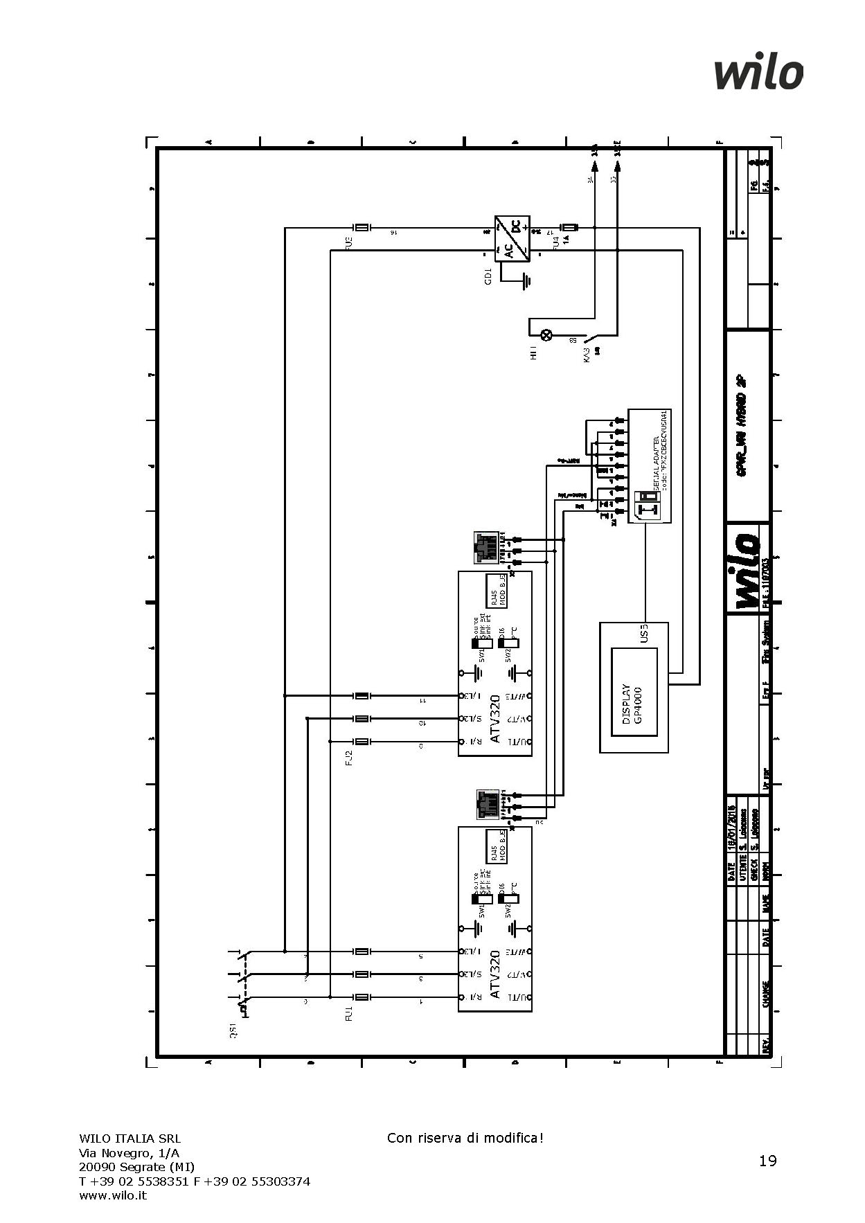
Mi hanno mandato la scheda tec., è un gr. pompe gemellare della Wilo
Da quello che vedo dovrei prevedere solo un unica linea trifase senza neutro che alimenta il quadro predisposto da Wilo.
A questo punto metterei un mtd da 3C16A con diff. 1A(s) ma non riesco a capire se tipo A o B perché come solito non lo indicano.
Da quello che vedo dovrei prevedere solo un unica linea trifase senza neutro che alimenta il quadro predisposto da Wilo.
A questo punto metterei un mtd da 3C16A con diff. 1A(s) ma non riesco a capire se tipo A o B perché come solito non lo indicano.
0
voti
Mike ha scritto:Io metterei classe A.
Tra i meandri della documentazione ho trovato una postilla in cui chiedono il B per il sistema trifase come quello in oggetto, tanto per far spendere soldi
0
voti
Duracell ha scritto:... tanto per far spendere soldi

--
Michele Lysander Guetta
--
"Non pensare mai al dolore, al pericolo o ai nemici un momento più lungo del necessario per combatterli." — Ayn Rand
Michele Lysander Guetta
--
"Non pensare mai al dolore, al pericolo o ai nemici un momento più lungo del necessario per combatterli." — Ayn Rand
-

Mike
55,6k 7 10 12 - G.Master EY

- Messaggi: 17002
- Iscritto il: 1 ott 2004, 18:25
- Località: Conegliano (TV)
0
voti
A distanza di mesi mi sono ritrovato un'altra situazione, sempre in un condominio, ma in questo caso le pompe verranno utilizzate normalmente come autoclave e in caso di emergenza come antincendio.
Metterò sempre una sola linea che alimenterà il QE pompe, linea che partirà subito a valle del contatore con cavo resistente al fuoco tipo FTG18OM16 ergo anche in questo caso non ci sarà una doppia alimentazione.
Che dite posso accenderla ?
Metterò sempre una sola linea che alimenterà il QE pompe, linea che partirà subito a valle del contatore con cavo resistente al fuoco tipo FTG18OM16 ergo anche in questo caso non ci sarà una doppia alimentazione.
Che dite posso accenderla ?
0
voti
Non mi risulta una soluzione a regola d'arte ai fini antincendio, probabilmente per l'antincendio ci sono delle motopompe. Quindi linea normale, non c'è nessuna linea di sicurezza.
--
Michele Lysander Guetta
--
"Non pensare mai al dolore, al pericolo o ai nemici un momento più lungo del necessario per combatterli." — Ayn Rand
Michele Lysander Guetta
--
"Non pensare mai al dolore, al pericolo o ai nemici un momento più lungo del necessario per combatterli." — Ayn Rand
-

Mike
55,6k 7 10 12 - G.Master EY

- Messaggi: 17002
- Iscritto il: 1 ott 2004, 18:25
- Località: Conegliano (TV)
21 messaggi
• Pagina 1 di 3 • 1, 2, 3
Torna a Impianti, sicurezza e quadristica
Chi c’è in linea
Visitano il forum: Nessuno e 76 ospiti

Elettrotecnica e non solo (admin)
Un gatto tra gli elettroni (IsidoroKZ)
Esperienza e simulazioni (g.schgor)
Moleskine di un idraulico (RenzoDF)
Il Blog di ElectroYou (webmaster)
Idee microcontrollate (TardoFreak)
PICcoli grandi PICMicro (Paolino)
Il blog elettrico di carloc (carloc)
DirtEYblooog (dirtydeeds)
Di tutto... un po' (jordan20)
AK47 (lillo)
Esperienze elettroniche (marco438)
Telecomunicazioni musicali (clavicordo)
Automazione ed Elettronica (gustavo)
Direttive per la sicurezza (ErnestoCappelletti)
EYnfo dall'Alaska (mir)
Apriamo il quadro! (attilio)
H7-25 (asdf)
Passione Elettrica (massimob)
Elettroni a spasso (guidob)
Bloguerra (guerra)


